Vente
Appartement
à
Vénissieux
204 900 €
Vénissieux (69200)
iad France - Sarah Rozière (06 99 86 19 42) vous propose : Appartement T2 avec balcon à Vénissieux.
BIEN LIRE L’ANNONCE !
APPARTEMENT DISPONIBLE 2028 !
Au cOEur de la résidence Arborea, située place Ennemond Romand, découvrez une adresse élégante qui s’inscrit dans un environnement dynamique et verdoyant.
Un appartement raffiné :
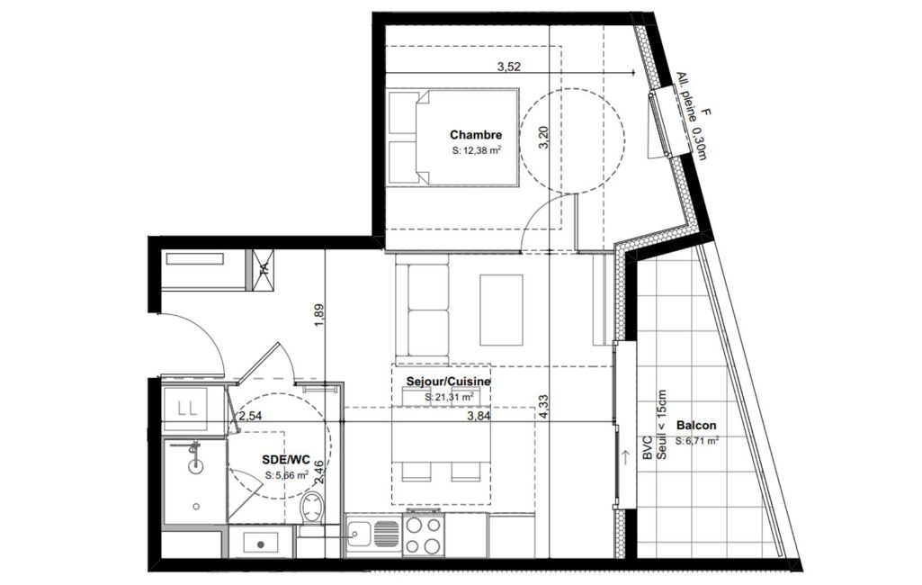
Situé au 2 ème étage, cet appartement T2 de 39 m² environ se prolonge par un balcon de 7 m² environ.
- Séjour/cuisine de 21 m² environ.
- Une chambre confortable.
- Salle d'eau moderne et équipée.
La performance énergétique est au rendez-vous grâce aux dernières normes, garantissant un confort durable et des charges maîtrisées. Le chauffage est assuré par le réseau de chaleur urbain permettant plus de 25 % d’économie par rapport à un chauffage classique.
Résidence et localisation :
- Résidence clôturée et des accès sécurisés.
- Un jardin signature favorable à la biodiversité.
- Locaux vélos sécurisés.
- À 6 minutes à pied du tramway T6.
- À proximité immédiate du parc Ennemond Romand.
Pas de travaux à prévoir et vous disposez d’une liberté de personnalisation pour créer un intérieur à votre image.
Augmentez votre capital en réduisant les frais de notaire et profitez d’un cadre de vie moderne, performant et clé en main.
Besoin de plus d’informations ou d’un accompagnement personnalisé ? N'hésitez pas à me contacter.
Honoraires d’agence à la charge du vendeur. Bien non soumis au DPE. Les informations sur les risques auxquels ce bien est exposé sont disponibles sur le site Géorisques : www.georisques.gouv.fr. La présente annonce immobilière a été rédigée sous la responsabilité éditoriale de Mlle Sarah Rozière EI (ID 83696), mandataire indépendant en immobilier (sans détention de fonds), agent commercial de la SAS I@D France immatriculé au RSAC de Clermont-Ferrand sous le numéro 978616993, titulaire de la carte de démarchage immobilier pour le compte de la société I@D France SAS.
Retrouvez tous nos biens sur notre site internet. www.iadfrance.fr
Mandat : 1983662-2
Diagnostic de Performance Énergétique (DPE)
Plus d'informations
-
Descriptif
- Étage du bien : 2eme
- Ascenseur
- Nbre. d'étages : 5
- Nbre. de chambres : 1
- Nb. de pièces : 2
-
Equipement
- Câble TV
- Digicode
- Placards
- Interphone
-
Conditions
- Honoraires à charge de : vendeur
-
Superficies
- Surface habitable : 39 m²
Localisation
Contactez nous
Pour plus d'informations sur cette annonce, n'hésitez pas à nous contacter