Vente
Appartement
à
Cluses
229 000 €
Cluses (74300)
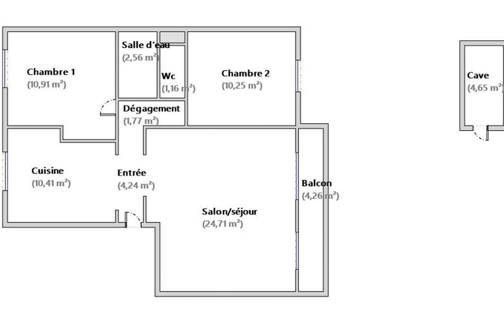
iad France - Fanny Caffiaux vous propose: Au cOEur de la charmante ville de Cluses, découvrez ce lumineux appartement de 4 pièces situé au 5ème étage d'un immeuble de 6 niveaux offrant une vue imprenable sur les environs. Construit en 1974, ce bien présente une surface de 77m² idéalement agencée pour vous offrir un cadre de vie agréable et fonctionnel.
L'appartement se compose de 3 chambres spacieuses, parfaites pour accueillir une famille un dressing ou un espace bureau selon vos besoins(pièce borgne) . Profitez également d'une salle d'eau et d'un WC séparé rénovés récemment pour votre confort au quotidien.
La cuisine fonctionnelle semi-ouverte et le salon-séjour lumineux constituent un espace convivial et chaleureux où vous pourrez vous détendre en toute tranquillité.
Une vaste cave et un garage fermé complètent le bien.
L'isolation du bâtiment a été effectuée il y a moins de 5 ans .
La chaudière collective est également récente.
Les charges comprennent l'eau froide et chaude, le chauffage, l'entretien des espaces verts ,le ménage ect .
Situé à proximité des commerces, des écoles et des transports en commun, cet appartement bénéficie d'une localisation stratégique pour faciliter votre quotidien. Les expositions Est, Sud et Ouest vous garantissent une luminosité optimale tout au long de la journée.
Construit dans les années 70, ce bien est en bon état général, offrant ainsi un cadre de vie confortable dès votre emménagement. Toutefois, des travaux de rafraîchissement pourraient être envisagés pour personnaliser cet espace à votre goût et en faire un lieu qui vous ressemble.
Ne manquez pas l'opportunité de visiter cet appartement plein de potentiel à Cluses. Contactez-nous dès maintenant pour organiser une visite et laissez-vous séduire par ce bien au charme indéniable.
La presente annonce immobiliere vise 3 lots situés dans une copropriété de 138 lots au total et ne faisant l'objet d'aucune procédure en cours citée à l'article L. 721-1 du code de la construction et de l'habitation. Montant moyen mensuel de charges déclaré par le vendeur : 180.67€ par mois (soit 2168 € annuel). Honoraires d'agence à la charge du vendeur.
Information d'affichage énergétique sur ce bien : classe ENERGIE E indice 165 et classe CLIMAT E indice 50. Les informations sur les risques auxquels ce bien est exposé, y compris l'obligation légale de débroussaillement, sont disponibles sur le site Géorisques : http://www.georisques.gouv.fr.
La présente annonce immobilière a été rédigée sous la responsabilité éditoriale de Mme Fanny Caffiaux mandataire indépendant en immobilier (sans détention de fonds), agent commercial de la SAS I@D France immatriculé au RSAC de Annecy sous le numéro 849336284, titulaire de la carte de démarchage immobilier pour le compte de la société I@D France SAS.
Mandat : 2019075
Diagnostic de Performance Énergétique (DPE)
Plus d'informations
-
Descriptif
- Cave
- Étage du bien : 5eme
- Ascenseur
- Nbre. d'étages : 6
- Nbre. de chambres : 3
- Nb. Parking : 1
- Nb. de pièces : 4
-
Equipement
- Câble TV
- Digicode
- Placards
- Chauffage : collectif fuel radiateur
- Interphone
-
Loi ALUR
- Copropriété
- Nombre de lots de la copropriété : 138
- Moyenne de la quote part(an) : 2 168 €
-
Etat
- Année de construction : 1974
-
Conditions
- Honoraires à charge de : vendeur
-
Superficies
- Surface habitable : 77 m²
Localisation
Contactez nous
Pour plus d'informations sur cette annonce, n'hésitez pas à nous contacter