Vente
Maison
à
Bourgbarré
349 000 €
Bourgbarré (35230)
iad France - Audrey Di Cicco vous propose: ***Maison contemporaine de 124M² en plein centre de Bourgbarré*
Située dans la paisible commune de Bourgbarré, cette charmante maison offre un cadre de vie idéal avec toutes les commodités disponibles à pied.
La maison se compose d'une entrée desservant la pièce de vie avec la partie salon, une cuisine ouverte entièrement aménagée et équipée ainsi qu'une salle-à-manger, toutes dirigées sur la terrasse. Une arrière-cuisine, une chambre ainsi qu'une salle d'eau (douche à l'italienne et double vasques), wc indépendant avec lave-mains.
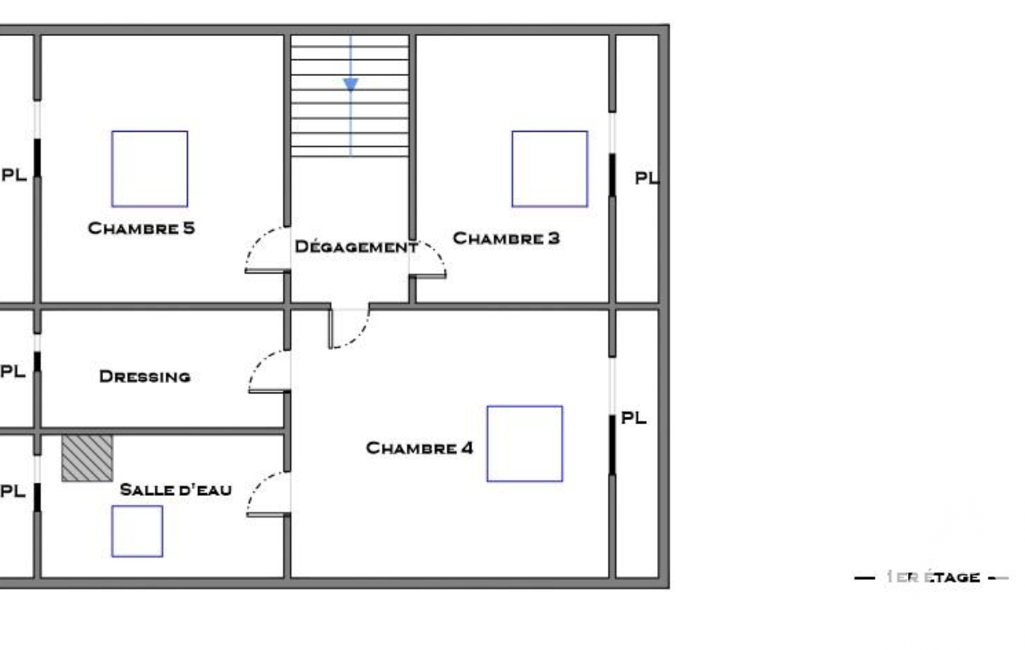
A l'étage: trois chambres dont deux avec placard, wc, salle d'eau (douche à l'italienne et simple vasque), un dressing.
À l'extérieur, le jardin d'environ 325M² vous invite à la détente et à la convivialité. Une terrasse, un cabanon et un garage à disposition.
Située au calme tout en étant proche des commodités, cette maison offre un cadre de vie paisible et pratique. Une opportunité à saisir pour les personnes en quête de calme et de confort, dans un environnement préservé.
Ne manquez pas cette opportunité unique, contactez-moi pour organiser une visite et laissez-vous séduire par ce bien d'exception !
* Visite virtuelle disponible après premier contact téléphonique*
Honoraires d'agence à la charge du vendeur.
Information d'affichage énergétique sur ce bien : classe ENERGIE B indice 72 et classe CLIMAT A indice 2. Les informations sur les risques auxquels ce bien est exposé, y compris l'obligation légale de débroussaillement, sont disponibles sur le site Géorisques : http://www.georisques.gouv.fr.
La présente annonce immobilière a été rédigée sous la responsabilité éditoriale de Mme Audrey Di Cicco mandataire indépendant en immobilier (sans détention de fonds), agent commercial de la SAS I@D France immatriculé au RSAC de Rennes sous le numéro 820858769, titulaire de la carte de démarchage immobilier pour le compte de la société I@D France SAS.
Mandat : 2023326
Diagnostic de Performance Énergétique (DPE)
Plus d'informations
-
Descriptif
- Nbre. d'étages : 1
- Nb. de pièces : 5
-
Superficies
- Superficie terrain : 325 m²
- Surface habitable : 124 m²
-
Etat
- Année de construction : 2020
-
Conditions
- Honoraires à charge de : vendeur
Localisation
Contactez nous
Pour plus d'informations sur cette annonce, n'hésitez pas à nous contacter