Vente
Longère
à
Le Faouët
245 000 €
Le Faouët (56320)
iad France - Angélique Palvadeau vous propose: Ensemble immobilier en pierre – Campagne du Faouët – Environnement calme et naturel.
Situé en campagne du Faouët, dans un cadre verdoyant et paisible, cet ensemble immobilier en pierre séduira les amoureux de nature, de tranquillité et d’authenticité.
Il se compose de deux maisons en pierre, en grande partie rénovées, offrant de nombreuses possibilités : résidence principale avec maison d’amis, projet de gîtes ou investissement locatif.
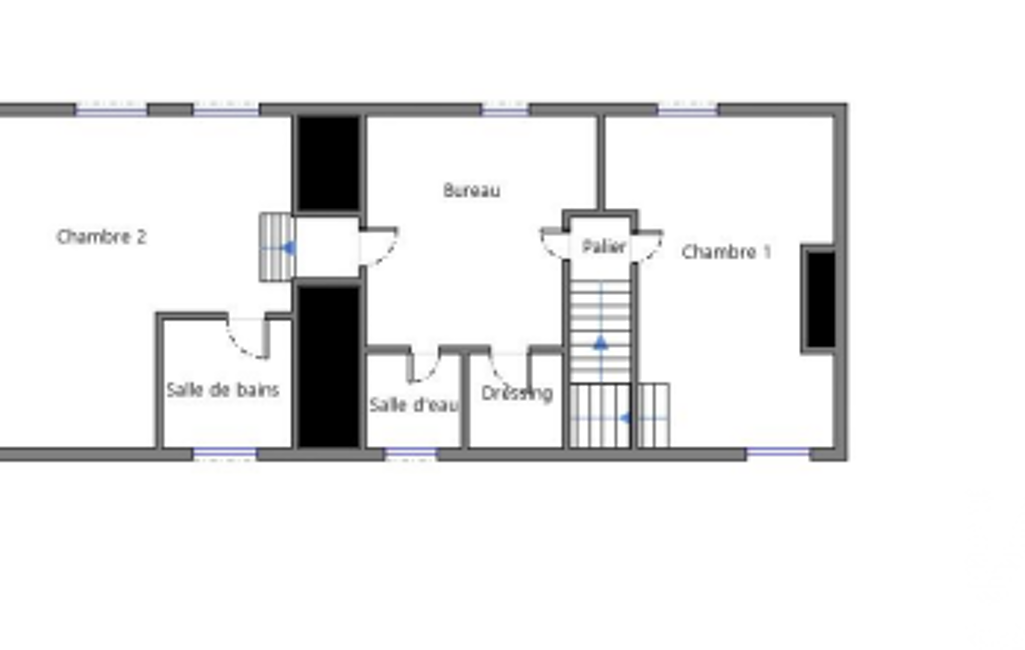
Première maison (environ 106 m²) :
Elle offre une belle pièce de vie lumineuse et pleine de charme avec poutres apparentes, mur en pierre agrémenté d’un poêle à bois.
Dans la continuité :
une cuisine aménagée et équipée avec espace salle à manger,
une véranda entièrement vitrée permettant de profiter de la nature,
un WC,
un local technique.
À l’étage :
une mezzanine,
deux chambres, dont une avec salle d’eau privative,
une salle d'eau,
un WC,
un dressing.
La maison bénéficie d’une exposition plein sud avec une vue dégagée sur la campagne et un accès direct à une grande terrasse.
Un garage non attenant complète ce bien avec, à l’étage, une pièce aménagée et isolée pouvant être utilisée en studio, bureau ou salle de loisirs.
Seconde maison également en pierre (environ 102 m²) :
Elle offre une pièce de vie lumineuse avec poutres apparentes et cheminée en pierre,
une salle d’eau avec WC,
une grande cuisine / salle à manger (non aménagée) avec cheminée,
un cellier.
À l’étage :
un palier,
deux grandes chambres,
une salle d’eau avec WC.
Un garage attenant complète cette maison.
Extérieurs :
cour entre les deux maisons,
environnement calme, sans vis-à-vis,
vue dégagée sur la campagne environnante.
Informations complémentaires :
Des travaux restent à prévoir, mais les maisons sont habitables en l’état.
Ce bien offre un fort potentiel pour un projet familial, touristique ou locatif.
Honoraires d'agence à la charge de l'acquéreur. Prix honoraires inclus : 245000 euros. Prix hors honoraires : 235000 euros. Honoraires TTC à la charge de l'acquéreur (4,26% du prix du bien hors honoraires) : 10000 euros.
Information d'affichage énergétique sur ce bien : classe ENERGIE E indice 310 et classe CLIMAT B indice 10. Les informations sur les risques auxquels ce bien est exposé, y compris l'obligation légale de débroussaillement, sont disponibles sur le site Géorisques : http://www.georisques.gouv.fr.
La présente annonce immobilière a été rédigée sous la responsabilité éditoriale de Mme Angélique Palvadeau mandataire indépendant en immobilier (sans détention de fonds), agent commercial de la SAS I@D France immatriculé au RSAC de RENNES sous le numéro 534178769, titulaire de la carte de démarchage immobilier pour le compte de la société I@D France SAS.
Mandat : 1985110
Diagnostic de Performance Énergétique (DPE)
Plus d'informations
-
Conditions
- Honoraires : 10 000 €
- Prix hors honoraires acquéreur : 235 000 €
- Honoraires à charge de : acquéreur
-
Descriptif
- Nbre. d'étages : 2
- Nbre. de chambres : 4
- Nb. de pièces : 8
-
Superficies
- Superficie terrain : 1290 m²
- Surface habitable : 209 m²
-
Equipement
- Chauffage : electrique radiateur
Localisation
Contactez nous
Pour plus d'informations sur cette annonce, n'hésitez pas à nous contacter