Vente
Terrain
à
Saint-Féliu-d'Amont
153 000 €
Saint-Féliu-d'Amont (66170)
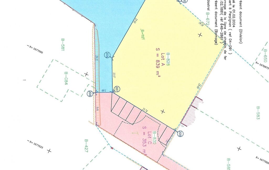
iad France - Michel-Ange Alarcon vous propose: Exclusivité: Sur la commune de SAINT FELIU D'AMONT. Terrain constructible 4 faces d ' environ 830 m2, viabilisé et près à bâtir situé dans une impasse.
Tous les réseaux (électricité, eau potable, eaux usées) sont en limite de propriété .
Terrain plat, libre de constructeur, avec possibilité de vous proposer un projet clé
en main. Un permis de construire a été déposer et accepter mais peux être modifié.
Plain-pied possible , toit plat autorisé aussi. Proche des commerces et des commodités. Situé seulement à 14 mn de PERPIGNAN et 15mn de Thuir
Honoraires d'agence à la charge du vendeur.
Bien non soumis au DPE. Les informations sur les risques auxquels ce bien est exposé, y compris l'obligation légale de débroussaillement, sont disponibles sur le site Géorisques : http://www.georisques.gouv.fr.
La présente annonce immobilière a été rédigée sous la responsabilité éditoriale de M Michel-Ange Alarcon mandataire indépendant en immobilier (sans détention de fonds), agent commercial de la SAS I@D France immatriculé au RSAC de PERPIGNAN sous le numéro 448396275, titulaire de la carte de démarchage immobilier pour le compte de la société I@D France SAS.
Mandat : 1953602
Diagnostic de Performance Énergétique (DPE)
Plus d'informations
-
Conditions
- Honoraires à charge de : vendeur
-
Superficies
- Superficie terrain : 828 m²
Localisation
Contactez nous
Pour plus d'informations sur cette annonce, n'hésitez pas à nous contacter