Vente
Maison
à
Saint-Arnoult-en-Yvelines
267 000 €
Saint-Arnoult-en-Yvelines (78730)
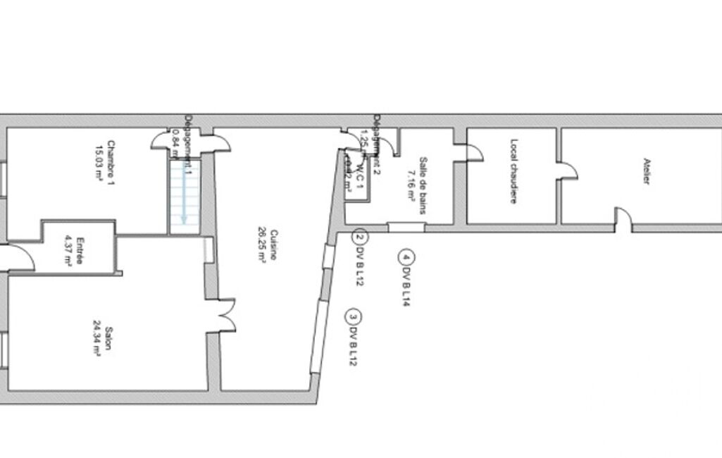
iad France - Magali Maucotel vous propose: Maison de ville à Saint-Arnoult-en-Yvelines d'environ 100m², sur une parcelle de 450m².
Entrée séparée avec placards donnant accès au salon, puis une cuisine avec partie sous véranda. Egalement, une chambre, une salle de bain avec douche, wc séparé et buanderie complète ce niveau, permettant une vie de plain-pied.
L'étage se compose d'un palier, d'une chambre, d'un espace bureau, d'un wc séparé avec lavabo. Accès grenier.
Un garage et un jardin viennent compléter cet ensemble, ainsi qu'une cave voutée et un atelier.
Double accès / proche des commerces et écoles / stationnement / grande terrasse sans vis à vis !
Fort potentiel d'aménagement et terrain constructible !
Chauffage fuel et électrique.
Contactez moi sans tarder pour plus d'informations et organiser une visite !
Honoraires d'agence à la charge du vendeur.
Information d'affichage énergétique sur ce bien : classe ENERGIE E indice 244 et classe CLIMAT E indice 50. Les informations sur les risques auxquels ce bien est exposé, y compris l'obligation légale de débroussaillement, sont disponibles sur le site Géorisques : http://www.georisques.gouv.fr.
La présente annonce immobilière a été rédigée sous la responsabilité éditoriale de Mme Magali Maucotel mandataire indépendant en immobilier (sans détention de fonds), agent commercial de la SAS I@D France immatriculé au RSAC de EVRY COURCOURONNES sous le numéro 988883070, titulaire de la carte de démarchage immobilier pour le compte de la société I@D France SAS.
Mandat : 1989298
Diagnostic de Performance Énergétique (DPE)
Plus d'informations
-
Descriptif
- Cave
- Terrasse
- Nbre. d'étages : 1
- Nbre. de chambres : 2
- Nb. de pièces : 4
-
Superficies
- Surface terrasse : 50 m²
- Superficie terrain : 450 m²
- Surface habitable : 100 m²
-
Equipement
- Câble TV
- Chauffage : fuel radiateur
-
Etat
- Année de construction : 1800
-
Conditions
- Honoraires à charge de : vendeur
Localisation
Contactez nous
Pour plus d'informations sur cette annonce, n'hésitez pas à nous contacter