Vente
Appartement
à
Évry
131 000 €
Évry (91000)
iad France - Claire Pardo vous propose: Nouvelle opportunité – Appartement 5 pièces – Évry (Résidence Le Parc et Château de Petit Bourg)
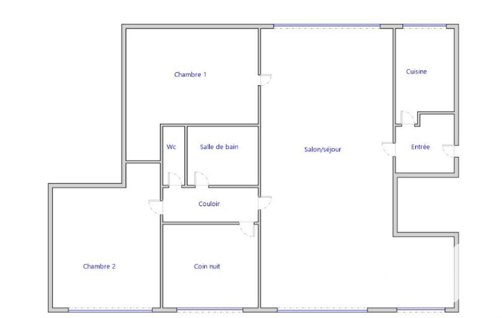
Au cOEur de la résidence Le Parc et Château de Petit Bourg à Évry, découvrez cet appartement de 78 m² situé au 8ᵉ étage avec ascenseur.
Il se compose d’une entrée avec placard, d’une cuisine à aménager selon vos envies, et d’un séjour double lumineux offrant un bel espace de vie. L’appartement dispose également de trois chambres, d’un WC séparé et d’une salle de bain à rénover, laissant place à votre projet de personnalisation.
Une cave en sous-sol complète ce bien, ainsi qu’une place de parking extérieur.
Des travaux sont à prévoir, ce qui en fait une excellente opportunité pour les amateurs de rénovation souhaitant valoriser un bien à fort potentiel.
Résidence calme avec espaces verts, à proximité des commodités, transports et écoles.
Pour plus d’informations ou organiser une visite, contactez-nous.
La presente annonce immobiliere vise 3 lots situés dans une copropriété de 1488 lots au total et ne faisant l'objet d'aucune procédure en cours citée à l'article L. 721-1 du code de la construction et de l'habitation. Montant moyen mensuel de charges déclaré par le vendeur : 225€ par mois (soit 2700 € annuel). Honoraires d'agence à la charge du vendeur.
Information d'affichage énergétique sur ce bien : classe ENERGIE E indice 265 et classe CLIMAT C indice 23. Les informations sur les risques auxquels ce bien est exposé, y compris l'obligation légale de débroussaillement, sont disponibles sur le site Géorisques : http://www.georisques.gouv.fr.
La présente annonce immobilière a été rédigée sous la responsabilité éditoriale de Mme Claire Pardo mandataire indépendant en immobilier (sans détention de fonds), agent commercial de la SAS I@D France immatriculé au RSAC de Evry sous le numéro 903118024, titulaire de la carte de démarchage immobilier pour le compte de la société I@D France SAS.
Mandat : 2002851
Diagnostic de Performance Énergétique (DPE)
Plus d'informations
-
Descriptif
- Cave
- Étage du bien : 8eme
- Gardien
- Ascenseur
- Nbre. d'étages : 12
- Nbre. de chambres : 3
- Nb. Parking : 1
- Nb. de pièces : 5
-
Equipement
- Câble TV
- Digicode
- Chauffage : collectif gaz
- Interphone
-
Loi ALUR
- Copropriété
- Nombre de lots de la copropriété : 1488
- Moyenne de la quote part(an) : 2 700 €
-
Etat
- Année de construction : 1960
-
Conditions
- Honoraires à charge de : vendeur
-
Superficies
- Surface habitable : 78 m²
Localisation
Contactez nous
Pour plus d'informations sur cette annonce, n'hésitez pas à nous contacter