Vente
Maison
à
Vernou-la-Celle-sur-Seine
450 000 €
Vernou-la-Celle-sur-Seine (77670)
iad France - Claire Hontarede vous propose: Venez découvrir cette grande maison au calme sur la commune de Vernou la Celle sur Seine. Maison rare sur le secteur par sa taille de 191m² - 6 chambres sur une belle parcelle de terrain de 1400m².
Maison élevée sur un très grand sous-sol total.
Composition :
Rez de chaussée : 2 vérandas, entrée, salon avec cheminée, salle à manger, cuisine, 2 chambres dont une avec salle d’eau et wc, puis un 1 wc indépendant.
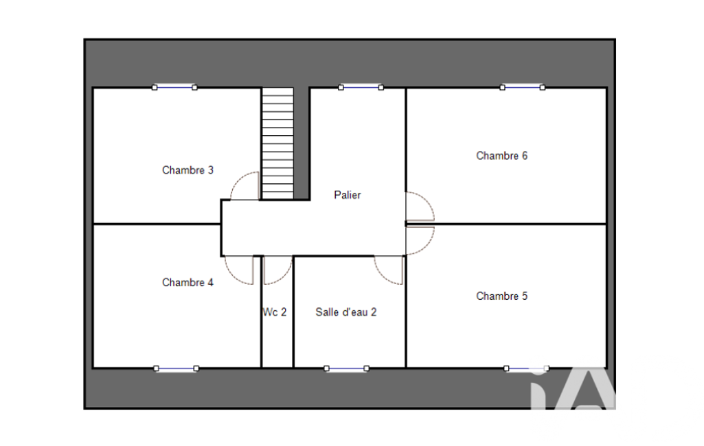
A l'étage : palier desservant 4 chambres, une salle d'eau et un wc.
Sous-sol total de plus de 3 mètres de hauteur (possibilité de stationner un camping car) et d’une surface de 130m² réparti en buanderie, garages et atelier.
Possibilité de débuter de belles balades à pied de la maison, elle est située dans une impasse calme à côté des champs.
De plus : abris de jardin pour stocker du bois et chalet de jardin.
N’hésitez pas à me contacter pour organiser une visite.
Honoraires d'agence à la charge du vendeur.
Information d'affichage énergétique sur ce bien : classe ENERGIE D indice 181 et classe CLIMAT B indice 6. Les informations sur les risques auxquels ce bien est exposé, y compris l'obligation légale de débroussaillement, sont disponibles sur le site Géorisques : http://www.georisques.gouv.fr.
La présente annonce immobilière a été rédigée sous la responsabilité éditoriale de Mme Claire Hontarede mandataire indépendant en immobilier (sans détention de fonds), agent commercial de la SAS I@D France immatriculé au RSAC de Melun sous le numéro 877850958, titulaire de la carte de démarchage immobilier pour le compte de la société I@D France SAS.
Mandat : 1996477
Diagnostic de Performance Énergétique (DPE)
Plus d'informations
-
Descriptif
- Nbre. d'étages : 1
- Nbre. de chambres : 6
- Nb. de pièces : 9
-
Superficies
- Superficie terrain : 1435 m²
- Surface habitable : 191 m²
-
Etat
- Année de construction : 1991
-
Conditions
- Honoraires à charge de : vendeur
Localisation
Contactez nous
Pour plus d'informations sur cette annonce, n'hésitez pas à nous contacter