Vente
Appartement
à
Nantes
154 800 €
Nantes (44000)
iad France - Celine Cailler vous propose: Appartement moderne de 3 pièces (construit en 2015) - Quartier Malakoff situé Place Rosa Parks - Nantes
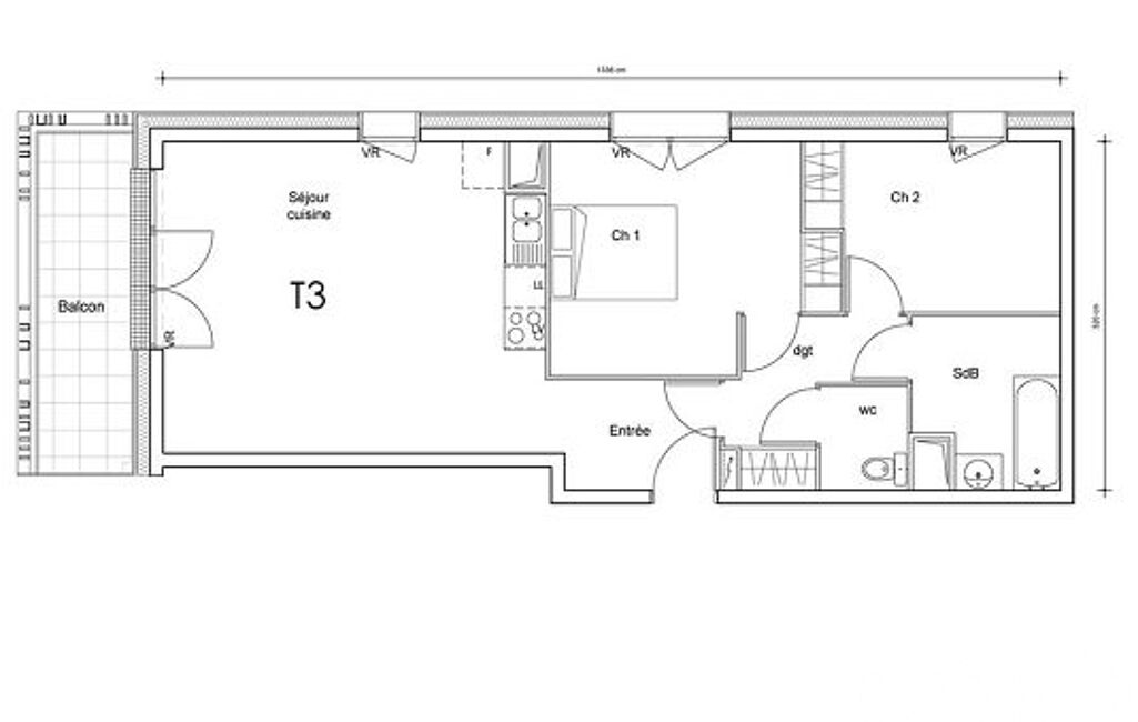
D'une surface habitable de 63.49m², cet appartement vous offre un cadre de vie agréable et contemporain.
En entrant, vous serez séduit par l'agencement fonctionnel de cet appartement. Le hall d'entrée dessert un lumineux et spacieux séjour/cuisine de 30.8m².
Les 2 chambres de 12.9m² et 9m² offrent des espaces confortables.
La salle de bain moderne et le WC séparé viennent compléter les commodités de cet appartement.
Côté équipements, cet appartement est équipé de la fibre optique, d'un système de ventilation mécanique, du chauffage urbain collectif, et d'un ascenseur, vous garantissant un confort de vie au quotidien.
Economique avec son excellent DPE : B/A
La proximité des commerces, des écoles et des transports en commun facilite votre quotidien.
Pour couronner le tout, bénéficiez d'un accès rapide au cOEur de Nantes.
Contactez-moi dès maintenant pour organiser une visite !
La presente annonce immobiliere vise 2 lots situés dans une copropriété de 165 lots au total et ne faisant l'objet d'aucune procédure en cours citée à l'article L. 721-1 du code de la construction et de l'habitation. Montant moyen mensuel de charges déclaré par le vendeur : 196€ par mois (soit 2352 € annuel). Honoraires d'agence à la charge du vendeur.
Information d'affichage énergétique sur ce bien : classe ENERGIE B indice 106 et classe CLIMAT A indice 3. Les informations sur les risques auxquels ce bien est exposé, y compris l'obligation légale de débroussaillement, sont disponibles sur le site Géorisques : http://www.georisques.gouv.fr.
La présente annonce immobilière a été rédigée sous la responsabilité éditoriale de Mme Celine Cailler mandataire indépendant en immobilier (sans détention de fonds), agent commercial de la SAS I@D France immatriculé au RSAC de NANTES sous le numéro 893600676, titulaire de la carte de démarchage immobilier pour le compte de la société I@D France SAS.
Mandat : 1950626
Diagnostic de Performance Énergétique (DPE)
Plus d'informations
-
Descriptif
- Ascenseur
- Nbre. de chambres : 2
- Nb. de pièces : 3
-
Loi ALUR
- Copropriété
- Nombre de lots de la copropriété : 165
- Moyenne de la quote part(an) : 2 352 €
-
Equipement
- Interphone
-
Etat
- Année de construction : 2015
-
Conditions
- Honoraires à charge de : vendeur
-
Superficies
- Surface habitable : 63 m²
Localisation
Contactez nous
Pour plus d'informations sur cette annonce, n'hésitez pas à nous contacter