Vente
Appartement
à
Villeurbanne
170 000 €
Villeurbanne (69100)
iad France - Christelle Klein vous propose: En Exclusivité: Appartement T2 vendu loué!
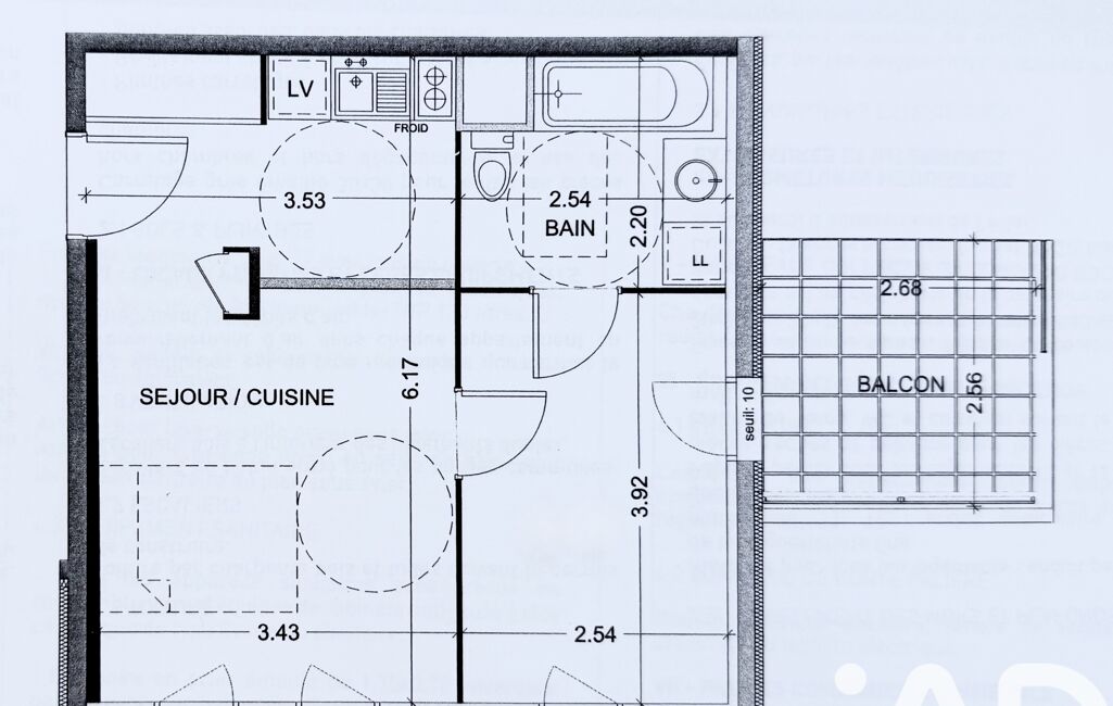
Situé au 3ème étage d'une résidence de 2011, cet appartement T2 de 36 m² environ offre un espace de vie fonctionnel et lumineux.
La pièce de vie principale se compose d'un séjour de 20,85 m² avec un coin cuisine, la chambre de près de 10 m² est confortable et donne accès au balcon de 7m².
Prestations: chauffage individuel, fibre optique, ascenseur, accès PMR, digicode, interphone.
La résidence est sécurisée et fermée.
Un box fermé est inclus dans le prix, vous permettant de garer votre véhicule en toute sécurité.
Loyer actuel: 551€
Idéalement situé à proximité du T3 Reconnaissance Balzac et prochainement du TB12 , vous bénéficierez de toutes les commodités à proximité : commerces, transports en commun, écoles, parcs, offrant un cadre de vie agréable et pratique.
La presente annonce immobiliere vise 2 lots situés dans une copropriété de 114 lots au total et ne faisant l'objet d'aucune procédure en cours citée à l'article L. 721-1 du code de la construction et de l'habitation. Montant moyen mensuel de charges déclaré par le vendeur : 98€ par mois (soit 1176 € annuel). Honoraires d'agence à la charge du vendeur.
Information d'affichage énergétique sur ce bien : classe ENERGIE C indice 117 et classe CLIMAT C indice 22. Les informations sur les risques auxquels ce bien est exposé, y compris l'obligation légale de débroussaillement, sont disponibles sur le site Géorisques : http://www.georisques.gouv.fr.
La présente annonce immobilière a été rédigée sous la responsabilité éditoriale de Mme Christelle Klein mandataire indépendant en immobilier (sans détention de fonds), agent commercial de la SAS I@D France immatriculé au RSAC de LYON sous le numéro 823116744, titulaire de la carte de démarchage immobilier pour le compte de la société I@D France SAS.
Mandat : 1921867
Diagnostic de Performance Énergétique (DPE)
Plus d'informations
-
Descriptif
- Étage du bien : 3eme
- Ascenseur
- Nbre. de chambres : 1
- Nb. de pièces : 2
-
Equipement
- Digicode
- Chauffage : individuel gaz radiateur
- Interphone
-
Loi ALUR
- Copropriété
- Nombre de lots de la copropriété : 114
- Moyenne de la quote part(an) : 1 176 €
-
Etat
- Année de construction : 2011
-
Conditions
- Honoraires à charge de : vendeur
-
Superficies
- Surface habitable : 36 m²
Localisation
Contactez nous
Pour plus d'informations sur cette annonce, n'hésitez pas à nous contacter