Vente
Duplex
à
Saint-Maur-des-Fossés
759 000 €
Saint-Maur-des-Fossés (94100)
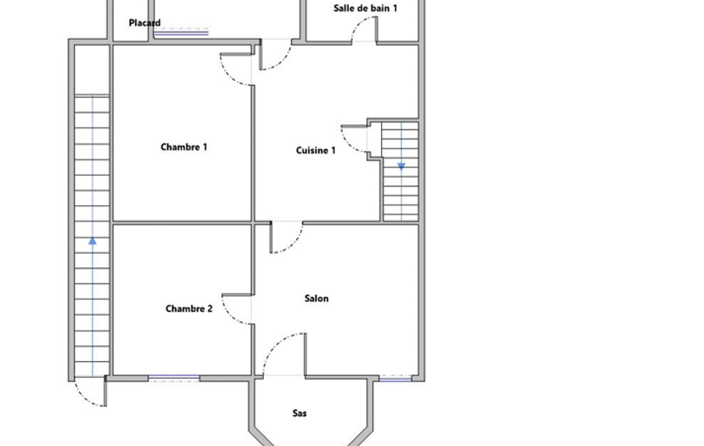
iad France - Virginie Puzenat vous propose: Duplex de 131m2 avec 3 chambres - triple exposition- grand jardin privatif et terrasses, niché dans un environnement calme et verdoyant. Dans une copropriété de standing sécurisée et parfaitement entretenue, ce bien offre de très beaux volumes. En rez-de-jardin, découvrez un double séjour lumineux de 38m2, ouvrant sur une belle terrasse de 27m2 exposée Sud et un grand jardin privatif, idéal pour profiter pleinement des beaux jours. La cuisine indépendante est conviviale et parfaitement équipée.
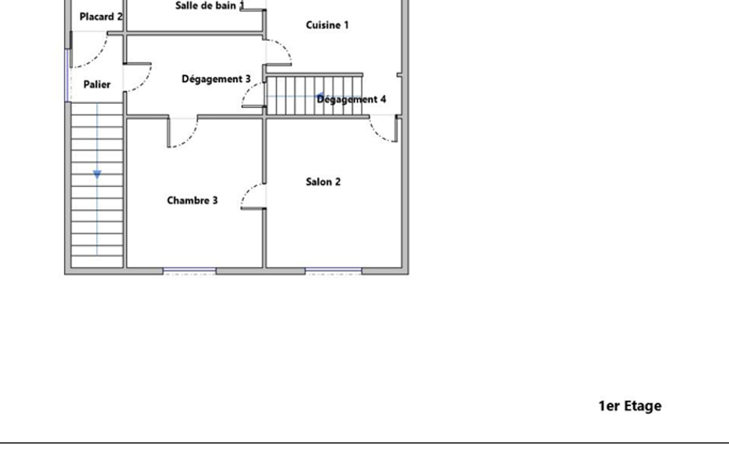
A l'étage, l'espace nuit se compose de 3 chambres, d’une salle de bains et d’une salle de douche, offrant confort et praticité au quotidien. Une belle terrasse de 14m2 est également accessible depuis la chambre parentale.
En complément, une double cave et une place de parking en sous-sol. Possibilité d'acquérir une seconde place en sus. Nombreux rangements, double vitrage, Fibre, DPE C, chauffage individuel. Un appartement clé en mains!
A 12m' à pied du RER A LE PARC ST MAUR, proche des commerces de la rue Baratte Cholet et des écoles.
Je suis disponible 7J/7 pour vous le faire découvrir.
La presente annonce immobiliere vise 3 lots situés dans une copropriété de 64 lots au total et ne faisant l'objet d'aucune procédure en cours citée à l'article L. 721-1 du code de la construction et de l'habitation. Montant moyen mensuel de charges déclaré par le vendeur : 441.67€ par mois (soit 5300 € annuel). Honoraires d'agence à la charge du vendeur.
Information d'affichage énergétique sur ce bien : classe ENERGIE C indice 171 et classe CLIMAT C indice 14. Les informations sur les risques auxquels ce bien est exposé, y compris l'obligation légale de débroussaillement, sont disponibles sur le site Géorisques : http://www.georisques.gouv.fr.
La présente annonce immobilière a été rédigée sous la responsabilité éditoriale de Mme Virginie Puzenat mandataire indépendant en immobilier (sans détention de fonds), agent commercial de la SAS I@D France immatriculé au RSAC de CRETEIL sous le numéro 894878172, titulaire de la carte de démarchage immobilier pour le compte de la société I@D France SAS.
Mandat : 1918558
Diagnostic de Performance Énergétique (DPE)
Plus d'informations
-
Descriptif
- Cave
- Nb. de WC : 2
- Nb. de salles de bain : 1
- Nb. de salles d'eau : 1
- Terrasse
- Ascenseur
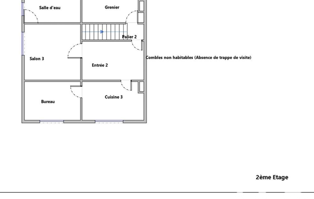
- Nbre. d'étages : 2
- Nbre. de chambres : 3
- Nb. Parking : 1
- Nb. de pièces : 5
-
Equipement
- Alarme
- Digicode
- Chauffage : individuel electrique radiateur
- Interphone
-
Loi ALUR
- Copropriété
- Nombre de lots de la copropriété : 64
- Moyenne de la quote part(an) : 5 300 €
-
Superficies
- Surface terrasse : 27 m²
- Superficie terrain : 250 m²
- Surface habitable : 131 m²
-
Etat
- Année de construction : 2000
-
Conditions
- Honoraires à charge de : vendeur
Localisation
Contactez nous
Pour plus d'informations sur cette annonce, n'hésitez pas à nous contacter