Vente
Maison
à
Chevinay
420 000 €
Chevinay (69210)
iad France - Nathalie Pouget vous propose: CHEVINAY 420000 € Exclusivité
Charmante maison de 165m² , nichée dans un écrin de verdure sur une parcelle de 3820m², offrant une vue imprenable sur la nature. Le + dans cette parcelle 600m² environ est constructible pour éventuellement être vendue ou accueillir un proche de votre famille.
La maison se compose:
-De plain-pied: Une cuisine indépendante, un séjour/salle à manger de 31m² avec une cheminée, une véranda de 10m², 2 chambres de 12m² environ avec placard, une salle de douche, un wc séparé.
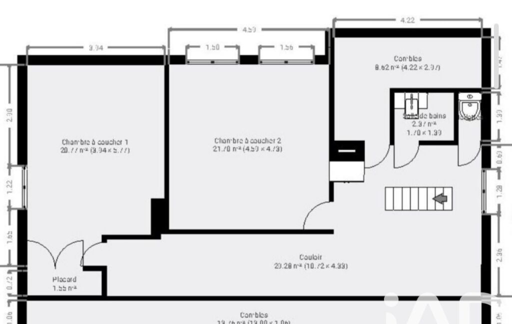
-A l'étage: 2 chambres de 21m², une salle d'eau, un wc séparé.
-Au sous-sol: un garage 86m² , une cave 15m², un atelier, une chaufferie 8m²
Située dans un quartier paisible, elle est idéale pour une belle qualité de vie.
La maison nécessite quelques travaux de rafraichissement offrant ainsi l'opportunité de personnaliser les espaces à votre goût.
N'attendez plus pour découvrir cette maison qui ne demande qu'à être sublimée,
Contactez-moi dès aujourd'hui pour une visite et laissez-vous séduire par ce petit coin de paradis.
Honoraires d'agence à la charge du vendeur.
Information d'affichage énergétique sur ce bien : classe ENERGIE G indice 505 et classe CLIMAT F indice 87. Les informations sur les risques auxquels ce bien est exposé, y compris l'obligation légale de débroussaillement, sont disponibles sur le site Géorisques : http://www.georisques.gouv.fr.
La présente annonce immobilière a été rédigée sous la responsabilité éditoriale de Mme Nathalie Pouget mandataire indépendant en immobilier (sans détention de fonds), agent commercial de la SAS I@D France immatriculé au RSAC de Lyon sous le numéro 949120885, titulaire de la carte de démarchage immobilier pour le compte de la société I@D France SAS.
Mandat : 1973268
Diagnostic de Performance Énergétique (DPE)
Plus d'informations
-
Descriptif
- Terrasse
- Nbre. d'étages : 2
- Nbre. de chambres : 4
- Nb. de pièces : 5
-
Equipement
- Cheminée
- Chauffage : fuel radiateur
-
Superficies
- Superficie terrain : 3820 m²
- Surface habitable : 164 m²
-
Etat
- Année de construction : 1970
-
Conditions
- Honoraires à charge de : vendeur
Localisation
Contactez nous
Pour plus d'informations sur cette annonce, n'hésitez pas à nous contacter