Vente
Maison de village
à
Cernex
380 000 €
Cernex (74350)
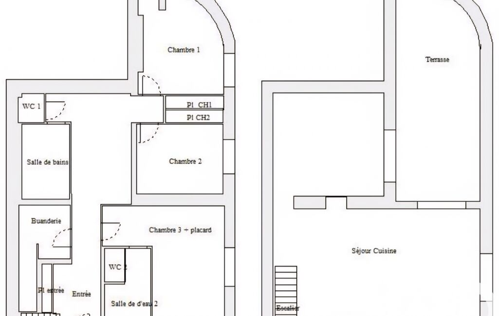
iad France - Elsa Cohu vous propose: Maison mitoyenne à rénover – 110 m² – Cernex (74)
À mi-chemin entre Annecy (25 km) et Genève (20 km), venez découvrir cette maison mitoyenne de 110 m² habitables sur 232 m² de terrain, idéale pour un projet de rénovation au caractère authentique.
Construite en 1953, exposition sud, elle se compose de 5 pièces dont 4 chambres et 2 salles de bain, ainsi qu'un grenier de 34 m² avec charpente isolée, offrant un beau potentiel d'aménagement supplémentaire.
Des travaux importants ont déjà été réalisés : fenêtres récemment remplacées, charpente isolée, chauffage par poêle à granulés et raccordement au tout-à-l'égout.
En complément, une grange et annexes (84 m² au total) offrent de beaux volumes à exploiter : atelier, stockage, garage ou potentiel d'extension.
Bien idéal pour les amateurs de grandes dépendances, ainsi que pour les marchands de biens et investisseurs à la recherche d'un projet à fort potentiel de valorisation.
Cernex, charmant village de Haute-Savoie, dispose d'une école primaire publique, d'une vie associative et sportive dynamique. Commerces et services à Cruseilles à 10 min. Situation idéale pour frontaliers grâce à l'accès rapide à l'A41.
Un bien rare, à fort potentiel, à venir découvrir sans tarder !
Honoraires d'agence à la charge du vendeur.
Information d'affichage énergétique sur ce bien : classe ENERGIE F indice 342 et classe CLIMAT B indice 10. Les informations sur les risques auxquels ce bien est exposé, y compris l'obligation légale de débroussaillement, sont disponibles sur le site Géorisques : http://www.georisques.gouv.fr.
La présente annonce immobilière a été rédigée sous la responsabilité éditoriale de Mme Elsa Cohu mandataire indépendant en immobilier (sans détention de fonds), agent commercial de la SAS I@D France immatriculé au RSAC de Thonon-les-Bains sous le numéro 987521762, titulaire de la carte de démarchage immobilier pour le compte de la société I@D France SAS.
Mandat : 2027880
Diagnostic de Performance Énergétique (DPE)
Plus d'informations
-
Descriptif
- Nb. de WC : 1
- Nb. de salles de bain : 1
- Nb. de salles d'eau : 1
- Nbre. d'étages : 2
- Nbre. de chambres : 4
- Nb. Parking : 1
- Nb. de pièces : 5
-
Superficies
- Superficie terrain : 232 m²
- Surface habitable : 110 m²
-
Etat
- Année de construction : 1953
-
Conditions
- Honoraires à charge de : vendeur
Localisation
Contactez nous
Pour plus d'informations sur cette annonce, n'hésitez pas à nous contacter