Vente
Appartement
à
Baillargues
379 000 €
Baillargues (34670)
iad France - Penelope Stoker (06 50 24 86 27) vous propose : Appartement T3 avec terrasse et places de parking – à Baillargues
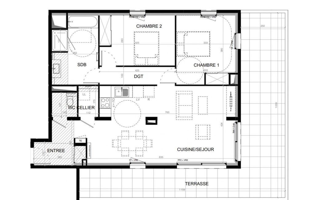
Situé à Baillargues, commune prisée aux portes de Montpellier, découvrez cet appartement T3, bénéficiant d’un environnement agréable à proximité du centre du village, des commerces, des écoles et de la gare TER permettant de rejoindre Montpellier rapidement.
D’une surface de 82,3 m² environ habitables, l’appartement offre une spacieuse pièce de vie avec cuisine ouverte de 34,5 m² environ, créant un espace de vie confortable et lumineux.
Le séjour s’ouvre sur une grande terrasse de 40,9 m² environ, idéale pour profiter pleinement d’un extérieur au quotidien.
La partie nuit comprend :
Deux chambres,
Une salle de bains,
Un WC indépendant.
Un cellier ainsi qu’un dégagement complètent l’agencement et apportent un espace de rangement supplémentaire.
L’appartement bénéficie d’une triple exposition nord, est et sud, offrant une belle luminosité et une ventilation naturelle agréable.
Le bien est vendu avec deux places de parking, un véritable atout pour le stationnement.
Un appartement idéal pour une résidence principale ou un investissement, dans un cadre de vie recherché à quelques minutes de Montpellier.
Pour plus de renseignements, n’hésitez pas à me contacter.
Honoraires d’agence à la charge du vendeur. Bien non soumis au DPE. Les informations sur les risques auxquels ce bien est exposé sont disponibles sur le site Géorisques : www.georisques.gouv.fr. La présente annonce immobilière a été rédigée sous la responsabilité éditoriale de Mme Penelope Stoker EI (ID 83102), mandataire indépendant en immobilier (sans détention de fonds), agent commercial de la SAS I@D France immatriculé au RSAC de Paris sous le numéro 930194964, titulaire de la carte de démarchage immobilier pour le compte de la société I@D France SAS.
Retrouvez tous nos biens sur notre site internet. www.iadfrance.fr
Mandat : 1903897-15
Diagnostic de Performance Énergétique (DPE)
Plus d'informations
-
Descriptif
- Terrasse
- Ascenseur
- Nb. Parking : 1
- Nb. de pièces : 3
-
Equipement
- Digicode
- Interphone
-
Conditions
- Honoraires à charge de : vendeur
-
Superficies
- Surface habitable : 82 m²
Localisation
Contactez nous
Pour plus d'informations sur cette annonce, n'hésitez pas à nous contacter