Vente
Maison
à
Perpignan
200 000 €
Perpignan (66000)
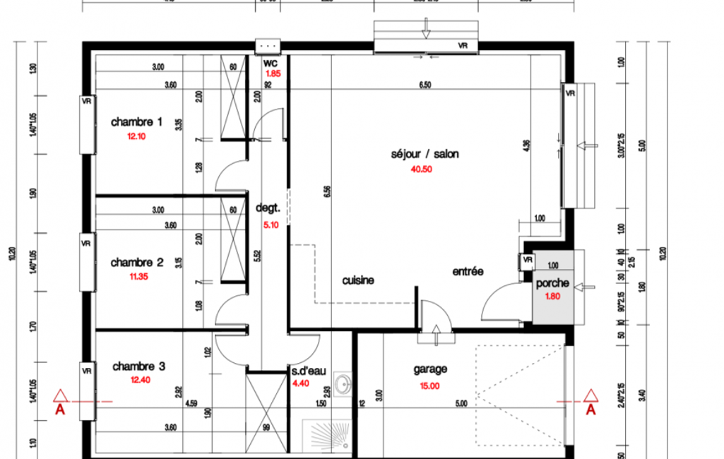
iad France - Mehdi Bougherara vous propose: Située à Perpignan, secteur moyen Vernet ,maison neuve construction 2025, d'une surface habitable de 95m² + garage, bâtie sur une parcelle en 3 faces de 380m² au fond d'une impasse.
Le bien est vendu hors d'eau hors d'air, idéal pour un projet personnalisé.
- Gros OEuvre réalisé
- Charpente métallique
- Menuiserie aluminium
- Toiture achevée
- Maison étanche ( eau et air )
L'ensemble de l'aménagement intérieur reste à réaliser.
Toutes les attentes et les évacuations sont sorties pour la réalisation d'une maison de plein pied avec 3 chambres, un séjour/cuisine, une salle de bain , un wc séparé ainsi qu'un garage .
Un véritable atout pour concevoir un intérieur à votre image et maitriser votre budget travaux.
Contactez-moi pour plus d'informations ou organiser une visite.
Honoraires d'agence à la charge du vendeur.
Bien non soumis au DPE. Les informations sur les risques auxquels ce bien est exposé, y compris l'obligation légale de débroussaillement, sont disponibles sur le site Géorisques : http://www.georisques.gouv.fr.
La présente annonce immobilière a été rédigée sous la responsabilité éditoriale de M Mehdi Bougherara mandataire indépendant en immobilier (sans détention de fonds), agent commercial de la SAS I@D France immatriculé au RSAC de Perpignan sous le numéro 941699332, titulaire de la carte de démarchage immobilier pour le compte de la société I@D France SAS.
Mandat : 1953570
Diagnostic de Performance Énergétique (DPE)
Plus d'informations
-
Descriptif
- Nbre. d'étages : 1
- Nb. de pièces : 4
-
Superficies
- Superficie terrain : 381 m²
- Surface habitable : 95 m²
-
Etat
- Année de construction : 2025
-
Conditions
- Honoraires à charge de : vendeur
Localisation
Contactez nous
Pour plus d'informations sur cette annonce, n'hésitez pas à nous contacter