Annonce détaillée

Vente
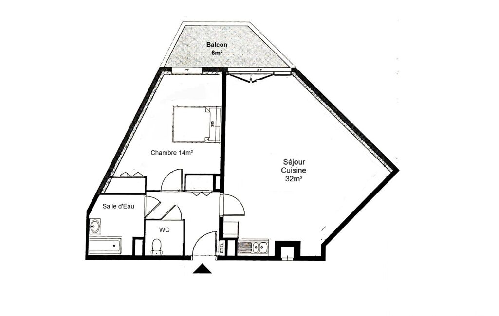
Appartement à Toulon
171 000 

Détails du bien

Pièce(s)
2 pièces
Salle(s) de bain
1
Surface
58 m²
Surface terrain
-
Orientation
-

Plus d'informations

  • Equipement
    • Alarme
    • Câble TV
    • Digicode
    • Chauffage : individuel electrique radiateur
    • Interphone
    • Climatisation
  • Descriptif
    • Étage du bien : 4eme
    • Ascenseur
    • Nbre. d'étages : 6
    • Nbre. de chambres : 1
    • Nb. de pièces : 2
  • Loi ALUR
    • Copropriété
    • Nombre de lots de la copropriété : 95
    • Moyenne de la quote part(an) : 1 284 €
  • Etat
    • Année de construction : 2021
  • Conditions
    • Honoraires à charge de : vendeur
  • Superficies
    • Surface habitable : 58 m²

Localisation

Contactez nous

Pour plus d'informations sur cette annonce, n'hésitez pas à nous contacter

Jean-Michel PY

Annonce 4128 / 77975