Vente
Immeuble
à
Bordeaux
397 000 €
Bordeaux (33000)
iad France - Marie-Lucie Ledain vous propose: Superbe Bâtiment Rénové à Bordeaux rue Mouneyra - Idéal Investissement !
Situé au cOEur de Bordeaux, cet immeuble entièrement rénové entre 2019 et 2025 offre une superficie de 82m² répartis sur 2 niveaux, offrant un potentiel exceptionnel pour un investissement locatif ou une transformation en espace commercial.
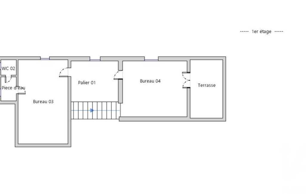
Au rez-de-chaussée, vous trouverez un espace d'accueil, une kitchenette, wc séparés et deux bureaux dont un avec entrée indépendante. À l'étage nous retrouvons un pallier, un. bureau avec balcon privatif et un bureau avec wc et point d'eau privatif également.
Actuellement un des bureaux est loué. Plus d'informations au téléphone.
La localisation de ce bâtiment est idéale, à proximité des commerces, des transports en commun, des espaces verts, du palais de justice. offrant un cadre de vie dynamique et pratique.
Avec aucuns travaux à prévoir, ce bâtiment représente une opportunité rare pour les investisseurs ou les personnes à la recherche d'un espace unique à personnaliser selon leurs besoins.
Travaux réalisés 2025 :
Zinguerie, chêneau, solins
Traitement des murs à injection contre remontées capillaires
Installation d’un système connecté de ventilation par surpression
Peinture
Travaux 2019 :
Toiture
Traitement de la charpente
Electricité
Retaille du mur intérieur, pierres apparentes et restauration d’escalier
Remplacement des fenêtres
Installation climatisation réversible
Maçonnerie et protection des parquets
Ne manquez pas l'occasion de visiter ce bâtiment exceptionnel et de réaliser un investissement d'avenir à Bordeaux !
Honoraires d'agence à la charge de l'acquéreur. Prix honoraires inclus : 397000 euros. Prix hors honoraires : 385000 euros. Honoraires TTC à la charge de l'acquéreur (3,12% du prix du bien hors honoraires) : 12000 euros.
Information d'affichage énergétique sur ce bien : classe ENERGIE C indice 141 et classe CLIMAT A indice 3. Les informations sur les risques auxquels ce bien est exposé, y compris l'obligation légale de débroussaillement, sont disponibles sur le site Géorisques : http://www.georisques.gouv.fr.
La présente annonce immobilière a été rédigée sous la responsabilité éditoriale de Mme Marie-Lucie Ledain mandataire indépendant en immobilier (sans détention de fonds), agent commercial de la SAS I@D France immatriculé au RSAC de bordeaux sous le numéro 911766897, titulaire de la carte de démarchage immobilier pour le compte de la société I@D France SAS.
Mandat : 1984656
Diagnostic de Performance Énergétique (DPE)
Plus d'informations
-
Conditions
- Honoraires : 12 000 €
- Prix hors honoraires acquéreur : 385 000 €
- Honoraires à charge de : acquéreur
-
Equipement
- Chauffage : individuel electrique
- Interphone
-
Descriptif
- Nbre. d'étages : 2
-
Etat
- Année de construction : 1948
-
Superficies
- Surface habitable : 82 m²
Localisation
Contactez nous
Pour plus d'informations sur cette annonce, n'hésitez pas à nous contacter