Vente
Maison
à
Saint-Brice-sous-Forêt
545 000 €
Saint-Brice-sous-Forêt (95350)
iad France - Gino Boccara vous propose: **Maison familiale 148 m² - Vaste séjour 41 m² – 4 belles chambres - Quartier Clos du Château (Vieux Saint-Brice)
Offrez à votre famille un véritable havre de paix dans le quartier prisé du Vieux Saint-Brice, le Clos du Château.
Spacieuse, fonctionnelle et pleine de charme, cette maison de 148 m² a tout pour plaire aux grandes familles.
Un espace de vie pensé pour la famille qui se compose de la manière suivante :
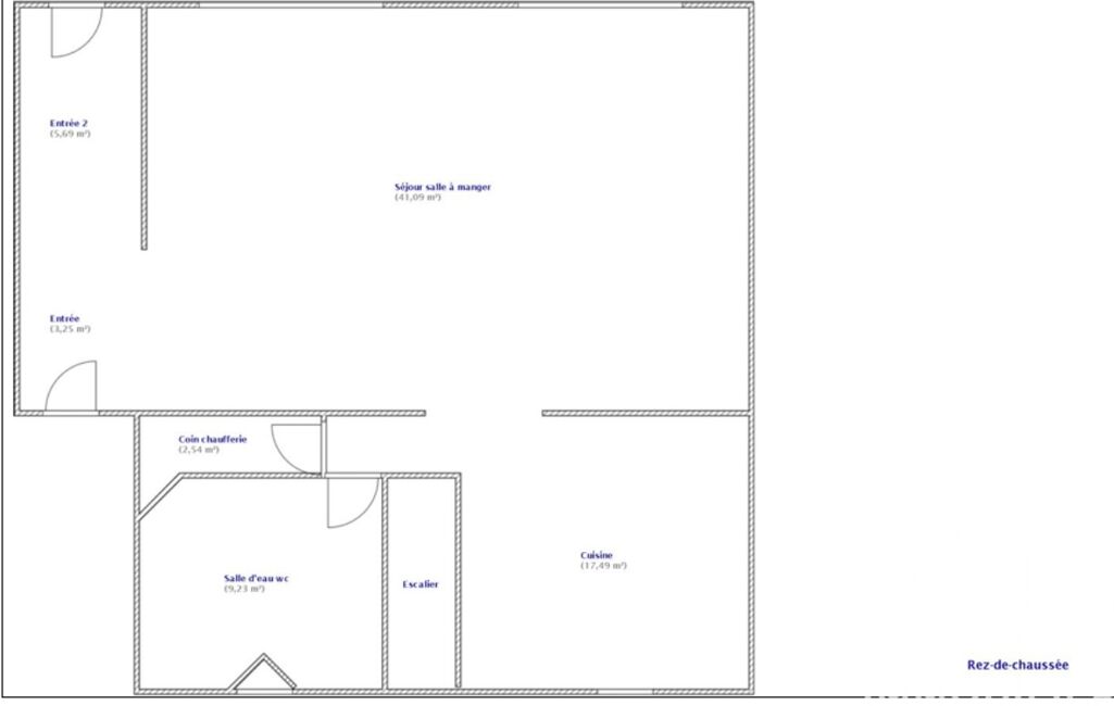
Au rez-de-chaussée, une entrée avec dressing, un séjour lumineux de 41 m² avec de grandes baies vitrées donnant sur le jardin, idéal pour partager des moments en famille, une cuisine de luxe, moderne et conviviale de 18 m², équipée par un professionnel (budget 40K€) et une lingerie avec douche et WC intégrés, parfaite pour les machines à laver et le rangement.
A l'étage, un palier qui accueille 4 chambres spacieuses, dont une suite parentale avec salle de bain et double vasque et un wc séparé.
Le jardin est exposé sud-ouest, idéal pour jeux, détente et barbecues, avec une dépendance de 8 m² pour ranger vélos et matériel de jardin, le tout sur un terrain de 350m²
Deux places de stationnement sécurisées complètent ce bien. .
À 20 minutes à pied de la gare SNCF (ligne H), Paris (Gare du Nord) en 16 minutes.
Quartier calme et recherché, proche des écoles et commodités, offrant un cadre de vie parfait pour élever une famille.
Cette maison est une opportunité rare pour les familles à la recherche de confort, de luminosité et d’un vrai espace de vie dans un quartier charmant et paisible.
Honoraires d'agence à la charge du vendeur.
Information d'affichage énergétique sur ce bien : classe ENERGIE C indice 119 et classe CLIMAT C indice 23. Les informations sur les risques auxquels ce bien est exposé, y compris l'obligation légale de débroussaillement, sont disponibles sur le site Géorisques : http://www.georisques.gouv.fr.
La présente annonce immobilière a été rédigée sous la responsabilité éditoriale de M Gino Boccara mandataire indépendant en immobilier (sans détention de fonds), agent commercial de la SAS I@D France immatriculé au RSAC de PONTOISE sous le numéro 952874667, titulaire de la carte de démarchage immobilier pour le compte de la société I@D France SAS.
Mandat : 1962674
Diagnostic de Performance Énergétique (DPE)
Plus d'informations
-
Descriptif
- Nbre. d'étages : 2
- Nbre. de chambres : 4
- Nb. de pièces : 6
-
Equipement
- Câble TV
- Interphone
-
Superficies
- Superficie terrain : 350 m²
- Surface habitable : 149 m²
-
Etat
- Année de construction : 2008
-
Conditions
- Honoraires à charge de : vendeur
Localisation
Contactez nous
Pour plus d'informations sur cette annonce, n'hésitez pas à nous contacter