Vente
Appartement
à
Lyon
710 500 €
Lyon (69005)
iad France - Sarah Rozière (06 99 86 19 42) vous propose : Appartement T4 avec terrasse, Lyon 5.
Située Avenue du Point du Jour à Lyon 5, au cOEur d’un quartier élégant, la résidence contemporaine Le Privilège conjugue raffinement architectural et qualité de vie. Entre dynamisme urbain et sérénité, cette adresse offre un cadre de vie recherché, à proximité immédiate des commerces, des écoles et des transports. Disponible 2027.
Un appartement raffiné :
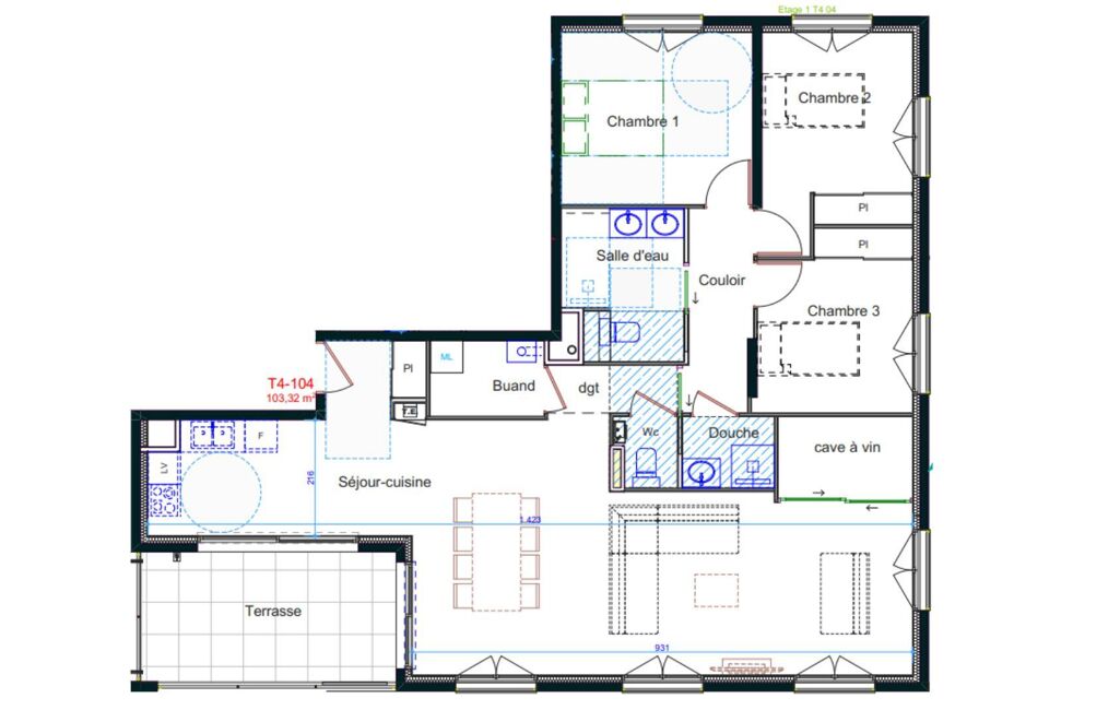
Situé au 1 er étage, cet appartement T4 de 103 m² environ habitables se prolonge par une terrasse de 11 m² environ.
- Séjour/cuisine de 49 m² environ.
- Trois chambres confortables.
- Deux salles d'eau modernes.
- Cave à vin.
De belles prestations :
- Menuiseries extérieures aluminium RAL 9006 avec double vitrage isolant.
- Chaudière gaz individuelle à condensation (chauffage + eau chaude).
- Résidence sécurisée : digicode, vidéophone, porte palière 3 points.
L’art de vivre à Lyon 5 :
- À quelques minutes du centre du Point du Jour (commerces, services).
- Accès rapide aux transports en commun vers Bellecour, Perrache et Part-Dieu.
- Environnement calme, résidentiel et très vert.
N’hésitez pas à me contacter pour plus d’informations ou pour un accompagnement sur mesure.
Honoraires d’agence à la charge du vendeur. Bien non soumis au DPE. Les informations sur les risques auxquels ce bien est exposé sont disponibles sur le site Géorisques : www.georisques.gouv.fr. La présente annonce immobilière a été rédigée sous la responsabilité éditoriale de Mlle Sarah Rozière EI (ID 83696), mandataire indépendant en immobilier (sans détention de fonds), agent commercial de la SAS I@D France immatriculé au RSAC de Clermont-Ferrand sous le numéro 978616993, titulaire de la carte de démarchage immobilier pour le compte de la société I@D France SAS.
Retrouvez tous nos biens sur notre site internet. www.iadfrance.fr
Mandat : 1866827-8
Diagnostic de Performance Énergétique (DPE)
Plus d'informations
-
Descriptif
- Étage du bien : 1er
- Terrasse
- Ascenseur
- Nbre. d'étages : 4
- Nbre. de chambres : 3
- Nb. de pièces : 4
-
Equipement
- Câble TV
- Digicode
- Chauffage : individuel gaz radiateur
- Interphone
-
Conditions
- Honoraires à charge de : vendeur
-
Superficies
- Surface habitable : 103 m²
Localisation
Contactez nous
Pour plus d'informations sur cette annonce, n'hésitez pas à nous contacter