Vente
Maison
à
Herblay-sur-Seine
339 000 €
Herblay-sur-Seine (95220)
iad France - Fabien Pruvot vous propose: Située dans le quartier paisible et verdoyant des Buttes Blanches, cette maison offre un cadre de vie idéal, proche de la nature et des commodités.
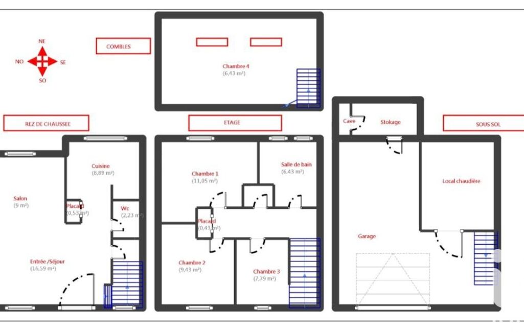
Édifiée sur un sous-sol total, cette maison d'une surface au sol de 100m2, se compose de la manière suivante :
• Au rez-de-chaussée : double séjour traversant baigné de lumière, une cuisine aménagée et équipée ainsi qu’un WC.
• À l’étage : un palier dessert deux chambres, une salle de bains avec douche et baignoire, ainsi qu'un bureau.
• Dans les combles aménagés : une troisième chambre.
• Au sous-sol total : un espace chaufferie buanderie, une belle cave à vin, un cellier et un espace de stationnement.
À seulement quelques minutes à pied, vous trouverez un groupe scolaire (maternelle et primaire), parfait pour les familles.
Un bien rare sur le secteur, offrant calme, confort et fonctionnalité. Contactez nous dès aujourd'hui pour convenir d'une visite.
Honoraires d'agence à la charge du vendeur.
Information d'affichage énergétique sur ce bien : classe ENERGIE D indice 187 et classe CLIMAT D indice 37. Les informations sur les risques auxquels ce bien est exposé, y compris l'obligation légale de débroussaillement, sont disponibles sur le site Géorisques : http://www.georisques.gouv.fr.
La présente annonce immobilière a été rédigée sous la responsabilité éditoriale de M Fabien Pruvot mandataire indépendant en immobilier (sans détention de fonds), agent commercial de la SAS I@D France immatriculé au RSAC de Pontoise sous le numéro 895227825, titulaire de la carte de démarchage immobilier pour le compte de la société I@D France SAS.
Mandat : 1948926
Diagnostic de Performance Énergétique (DPE)
Plus d'informations
-
Descriptif
- Terrasse
- Nbre. d'étages : 4
- Nbre. de chambres : 3
- Nb. de pièces : 5
-
Superficies
- Superficie terrain : 238 m²
- Surface habitable : 83 m²
-
Equipement
- Chauffage : gaz radiateur
-
Etat
- Année de construction : 1972
-
Conditions
- Honoraires à charge de : vendeur
Localisation
Contactez nous
Pour plus d'informations sur cette annonce, n'hésitez pas à nous contacter