Vente
Maison de village
à
Montois-la-Montagne
460 000 €
Montois-la-Montagne (57860)
iad France - Leslie Sendzik vous propose: MAISON MITOYENNE ZERO TRAVAUX - PIÈCES DE VIE DE 46M2 ACCES JARDIN - 4 CHAMBRES DONT 1 SUITE PARENTALE - COMBLES AMENAGES D'ENV. 70M2. - GARAGE 47M2 -
Vous cherchez une maison lumineuse et spacieuse ?
Venez découvrir cette ancienne épicerie entièrement rénovée !
Vous serez charmés par ses 4 chambres, sa suite parentale et ses combles aménagés.
Contactez-moi pour découvrir la vidéo de visite de la maison ou cliquez sur le lien présent dans l’annonce.
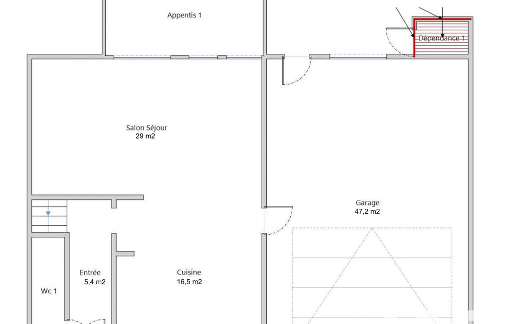
Commençons la visite par l’entrée qui dessert :
- Un WC séparé
- Une cuisine ouverte de 16,5m2
- Un séjour de 29m2 donnant accès à la terrasse NO et sa pergola
- Un garage spacieux de 47m2 pouvant accueillir deux véhicules
- Un escalier menant à l’étage
À l’extérieur, la cour revêtue de gazon synthétique vous offrira le confort d’un jardin avec peu d’entretien.
L’abri de jardin et son appentis complètent les extérieurs ainsi que deux grands bacs prêt à accueillir votre potager.
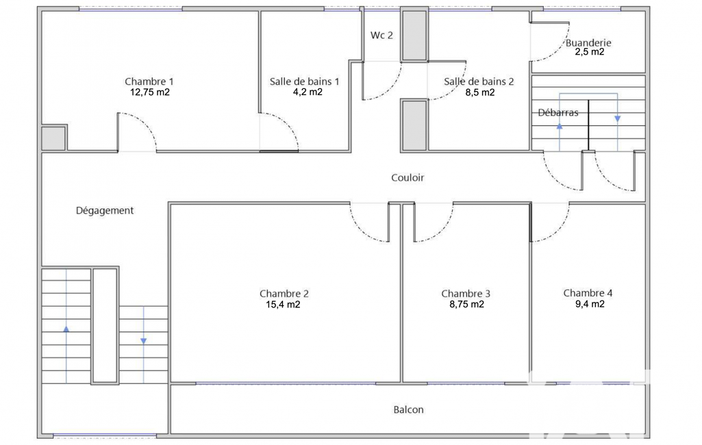
À l’étage, l’espace nuit se compose comme suit :
- Une suite parentale d’environ 12,7m2 équipée d’armoire sur mesure et sa salle d’eau attenante de 4,2m2
- Une salle de bain d’environ 8,5m2 et son espace buanderie de 2,5m2
- Un WC séparé
- Une chambre de 15,4m2 donnant accès au balcon
- Deux autres chambres de 8,75m2 et 9,4m2
- Un débarras
Les combles aménagés vous offrent un espace d’environ 70m2 pour accueillir vos projets.
Deux fenêtres de toit vous apporteront la luminosité nécessaire.
L'aménagement des combles sera achevé pour la vente. (murs blancs + parquet)
Arrivées et évacuations d’eau sont prêtes à être raccordées au besoin.
Pour votre confort domestique :
- Chauffage au gaz radiateurs dans toutes les pièces
- Poêle à pellet dans le séjour
- Volets motorisés
- Adoucisseur
- Fibre Optique
- VMC
Pour votre confort quotidien :
À proximité de l’école primaire, des commerces (boulangerie, coiffeur, restauration) et d’une maison médicale.
- À moins de 5 km de la zone commerciale de Sainte-Marie-aux-Chênes (Carrefour, Lidl, etc.)
- À moins de 10 minutes du collège
- À 800m de l’école maternelle et primaire
- À 15 minutes du nouvel hôpital de Maizières-lès-Metz
Travailleur frontalier : profitez des réseaux routiers secondaires pour rejoindre le Luxembourg
Honoraires d'agence à la charge du vendeur.
Information d'affichage énergétique sur ce bien : classe ENERGIE C indice 140 et classe CLIMAT C indice 22. Les informations sur les risques auxquels ce bien est exposé, y compris l'obligation légale de débroussaillement, sont disponibles sur le site Géorisques : http://www.georisques.gouv.fr.
La présente annonce immobilière a été rédigée sous la responsabilité éditoriale de Mme Leslie Sendzik mandataire indépendant en immobilier (sans détention de fonds), agent commercial de la SAS I@D France immatriculé au RSAC de METZ sous le numéro 918652231, titulaire de la carte de démarchage immobilier pour le compte de la société I@D France SAS.
Mandat : 1946497
Diagnostic de Performance Énergétique (DPE)
Plus d'informations
-
Descriptif
- Terrasse
- Nbre. d'étages : 3
- Nbre. de chambres : 4
- Nb. de pièces : 7
-
Superficies
- Surface terrasse : 34 m²
- Superficie terrain : 349 m²
- Surface habitable : 205 m²
-
Equipement
- Chauffage : gaz radiateur
-
Etat
- Année de construction : 1945
-
Conditions
- Honoraires à charge de : vendeur
Localisation
Contactez nous
Pour plus d'informations sur cette annonce, n'hésitez pas à nous contacter