Vente
Appartement
à
Saint-Laurent-du-Var
386 000 €
Saint-Laurent-du-Var (06700)
iad France - Céline Inaudi (06 58 44 63 26) vous propose : Appartement 3 pièces de 65m² environ en plein coeur de Saint Laurent du Var avec balcon.
Et si vous deveniez propriétaire sur la côte d'azur ?
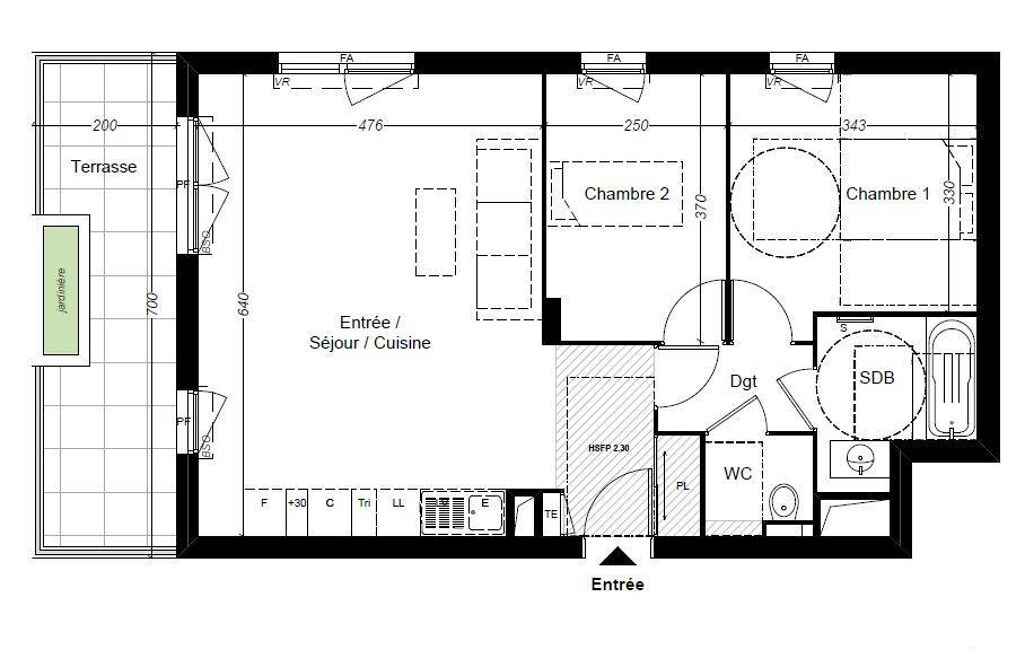
Découvrez cet appartement 3 pièces fonctionnel situé au 1er étage avec ascenseur, dans une résidence neuve au cOEur d’un quartier en pleine transformation, autour du square Bènes.
Cet appartement se compose d'une entrée avec placards, une pièce de vie séjour/cuisine ouvrant sur le balcon exposé OUEST.
Deux chambres, une salle de bain et un WC indépendant.
Commerces, écoles et services à proximité immédiate
Accès rapide à Nice, à la mer et aux transports
La résidence propose un cadre de vie agréable avec espaces végétalisés et architecture moderne.
Les plus de l'appartement :
Double vitrage isolant
Chauffage + climatisation par pompe à chaleur individuelle
Eau froide individuelle (compteur perso)
Eau chaude collective par pompe à chaleur
Ventilation VMC
Un bien idéal pour démarrer votre projet immobilier dans un environnement pratique et agréable.
Éligibilité au PTZ (selon votre situation)
Contactez-moi pour en savoir plus.
Honoraires d’agence à la charge du vendeur. Bien non soumis au DPE. Les informations sur les risques auxquels ce bien est exposé sont disponibles sur le site Géorisques : www.georisques.gouv.fr. La présente annonce immobilière a été rédigée sous la responsabilité éditoriale de Mlle Céline Inaudi EI (ID 85801), mandataire indépendant en immobilier (sans détention de fonds), agent commercial de la SAS I@D France immatriculé au RSAC de Avignon sous le numéro 532514403, titulaire de la carte de démarchage immobilier pour le compte de la société I@D France SAS.
Retrouvez tous nos biens sur notre site internet. www.iadfrance.fr
Mandat : 1987609-2
Diagnostic de Performance Énergétique (DPE)
Plus d'informations
-
Descriptif
- Étage du bien : 1er
- Ascenseur
- Nbre. d'étages : 4
- Nbre. de chambres : 2
- Nb. de pièces : 3
-
Equipement
- Câble TV
- Digicode
- Placards
- Climatisation
-
Etat
- Année de construction : 2025
-
Conditions
- Honoraires à charge de : vendeur
-
Superficies
- Surface habitable : 65 m²
Localisation
Contactez nous
Pour plus d'informations sur cette annonce, n'hésitez pas à nous contacter