Vente
Maison
à
Morsang-sur-Orge
489 000 €
Morsang-sur-Orge (91390)
iad France - Deborah Poquet vous propose: MAISON COUP DE COEUR !
Une maison comme celle-ci se fait rare : minutieusement pensée, parfaitement aménagée, très bien équipée et entretenue avec un soin remarquable, elle réunit confort, qualité et sérénité au quotidien.
Je vous propose cette maison familiale pleine de charme, située au calme d’une impasse, sur plus de 700 m² de terrain, à proximité des écoles et des transports, avec un niveau de prestations rare et aucun travaux à prévoir.
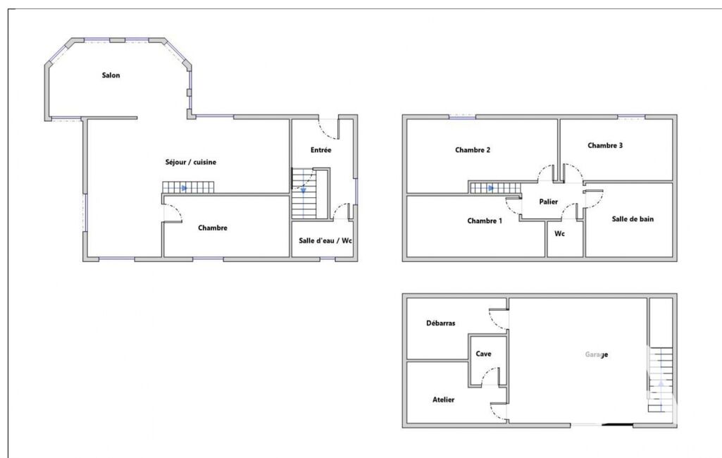
Avec 132 m² habitables, 157 m² au sol et un sous-sol total de 58 m², cette maison offre de beaux volumes et une organisation idéale pour la vie de famille.
Elle se compose d’une belle pièce de vie ultra lumineuse et chaleureuse, avec une très belle hauteur sous plafond, d’une cuisine équipée de qualité, de 4 chambres dont une au rez-de-chaussée avec dressing équipé, et de 2 pièces d’eau. La pièce de vie permet de se projeter instantanément, le tout renforcé par la présence d’une climatisation et d’un poêle à bois pour un confort été comme hiver.
Ici, aucun travaux à prévoir. La maison a été rénovée, améliorée et entretenue avec beaucoup de soin. Ravalement réalisé, électricité refaite à neuf, tableau électrique dernière génération, isolation des murs, des combles et du sous-sol, double vitrage performant, volets roulants électriques sur les fenêtres, volets solaires sur les vélux, radiateurs performants… tout a été pensé pour le confort au quotidien et pour la performance énergétique, avec un DPE classé C.
À l’extérieur, les prestations sont tout aussi soignées : deux terrasses entièrement carrelées à l’avant et à l’arrière, un grand carport pouvant accueillir 2 véhicules, un portail coulissant électrique, un vidéophone connecté, ainsi qu’une grande capacité de stationnement sur la parcelle permettant de garer facilement plusieurs véhicules, un camping-car ou un camion.
Le jardin, particulièrement agréable, complète parfaitement l’ensemble avec plus de 100 variétés d’arbres, arbustes et fleurs différentes, ses deux cuves de récupération d’eau de pluie et son système de goutte-à-goutte pour faciliter l’arrosage.
La localisation est également un vrai atout pour la vie de famille : l’école maternelle et élémentaire Ferdinand Buisson se trouve à environ 210 mètres, soit 2 à 3 minutes à pied. Le collège est à 1,4 km, soit environ 15 à 20 minutes à pied. Le futur lycée, annoncé pour 2027, sera situé à environ 650 mètres, soit 7 à 9 minutes à pied. Côté transports, un arrêt de bus se trouve à environ 400 mètres, permettant de rejoindre la gare d’Épinay-sur-Orge ou la gare de Savigny-sur-Orge en environ 20 minutes de bus.
C’est une maison complète, lumineuse, économique, parfaitement entretenue, avec de vrais volumes, de très belles prestations et un cadre de vie recherché. Un bien dans lequel on se projette immédiatement.
Honoraires d'agence à la charge du vendeur.
Information d'affichage énergétique sur ce bien : classe ENERGIE C indice 140 et classe CLIMAT A indice 5. Les informations sur les risques auxquels ce bien est exposé, y compris l'obligation légale de débroussaillement, sont disponibles sur le site Géorisques : http://www.georisques.gouv.fr.
La présente annonce immobilière a été rédigée sous la responsabilité éditoriale de Mme Deborah Poquet mandataire indépendant en immobilier (sans détention de fonds), agent commercial de la SAS I@D France immatriculé au RSAC de EVRY sous le numéro 841420557, titulaire de la carte de démarchage immobilier pour le compte de la société I@D France SAS.
Mandat : 1987702
Diagnostic de Performance Énergétique (DPE)
Plus d'informations
-
Equipement
- Cheminée
- Digicode
- Placards
- Chauffage : electrique radiateur
- Interphone
- Climatisation
-
Descriptif
- Terrasse
- Nbre. d'étages : 2
- Nbre. de chambres : 4
- Nb. Parking : 1
- Nb. de pièces : 6
-
Superficies
- Superficie terrain : 711 m²
- Surface habitable : 140 m²
-
Etat
- Année de construction : 1955
-
Conditions
- Honoraires à charge de : vendeur
Localisation
Contactez nous
Pour plus d'informations sur cette annonce, n'hésitez pas à nous contacter