Vente
Murs commerciaux
à
Jacou
588 469 €
Jacou (34830)
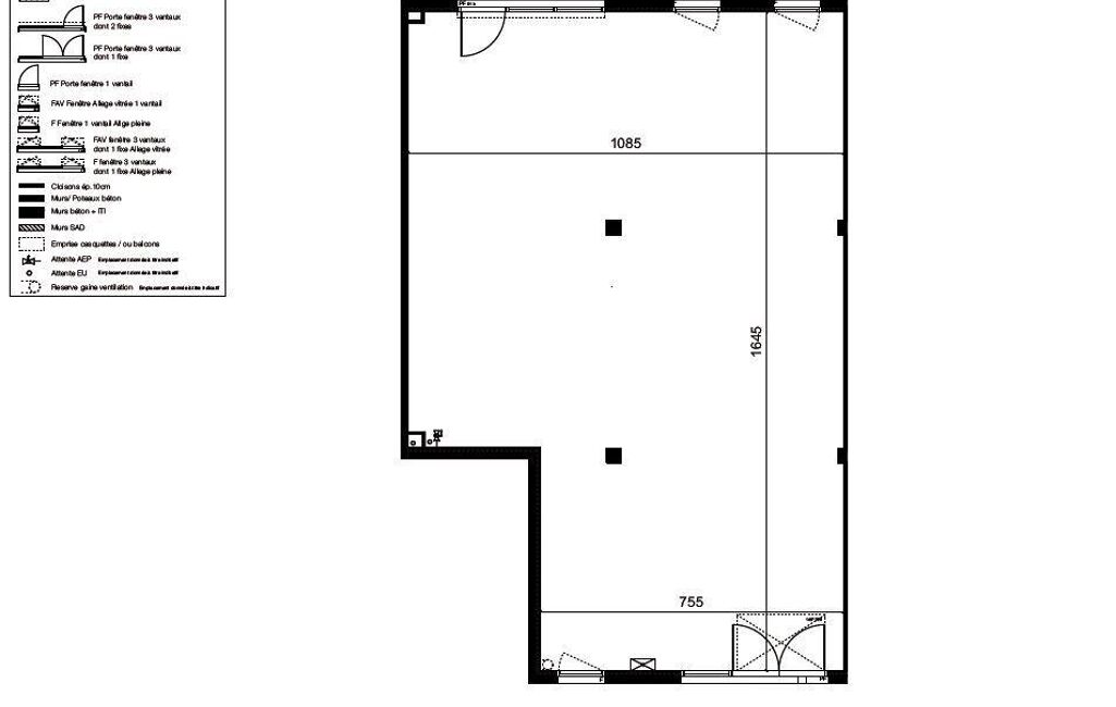
iad France - Anthony Didier (06 08 26 18 66) vous propose : Murs commerciaux à vendre : Atelier de 160m² environ au rez-de-chaussée d'un ensemble immobilier comprenant des bureaux et des ateliers.
Situé à l'entrée de Jacou, au nord de Montpellier le programme bénéficie d'une localisation stratégique, avec un accès direct aux principaux axes routiers et aux transports en commun.
Panneaux photovoltaïques en toiture.
Luminaires LED encastrés, faux plafonds, chauffage et climatisation gainable, menuiseries extérieures en aluminium laqué gris.
Pré-câblage pour fibre optique, téléphonie et réseaux informatiques.
Ce local convient pour :
-Activités à forte valeur ajoutée : frenchtech, biotech, nouvelles technologies, laboratoires, startup.
-Promotion des filières d’excellence : santé, alimentation, agritech, environnement.
-Industries créatives culturelles (ICC) : créateurs de jeux vidéo, e-sports.
-Artisanat ++
Un immeuble nouvelle génération, imaginé dès sa conception pour répondre aux ambitions des entrepreneurs.
Voisin immédiat du 610 (bureaux, commerces et services), des Halles gourmandes du 610 et du Pôle Santé, offrant une riche offre de services quotidiens.
Comprend 5 places de stationnement
Idéal investissement locatif :
Loyer annuel estimé à 32 777€HT soit une rentabilité brute de 6.68%
Taxe foncière estimée : 2092€
Charges copro estimées : 3347€/an
Prix affiché TTC - TVA récupérable 20%
Plusieurs locaux sont disponibles, veuillez me contacter pour recevoir les informations.
REF A005
Le bien associé à cette annonce est non soumis au DPE. Les informations sur les risques auxquels ce bien est exposé sont disponibles sur le site Géorisques : www.georisques.gouv.fr. La présente annonce immobilière a été rédigée sous la responsabilité éditoriale de M. Anthony Didier EI (ID 84034), mandataire indépendant en immobilier (sans détention de fonds), agent commercial de la SAS I@D France immatriculé au RSAC de Avignon sous le numéro 502388465, titulaire de la carte de démarchage immobilier pour le compte de la société I@D France SAS.
Retrouvez tous nos biens sur notre site internet. www.iadfrance.fr
Mandat : 1671254-5
Diagnostic de Performance Énergétique (DPE)
Plus d'informations
-
Conditions
- Honoraires à charge de : vendeur
-
Superficies
- Surface habitable : 160 m²
Localisation
Contactez nous
Pour plus d'informations sur cette annonce, n'hésitez pas à nous contacter