Vente
Appartement
à
Vallauris
721 000 €
Vallauris (06220)
iad France - Sarah Rozière (06 99 86 19 42) vous propose : Appartement T4 avec terrasse à Golfe-Juan.
Nichée Chemin Notre-Dame, dans un cadre calme et verdoyant, la résidence contemporaine L’Escale conjugue élégance architecturale et qualité de vie préservée. À seulement quelques minutes des plages, du port Camille Rayon et du centre de Golfe-Juan, cette adresse offre un environnement apaisé entre mer et nature. Disponible 2026.
Un appartement raffiné :
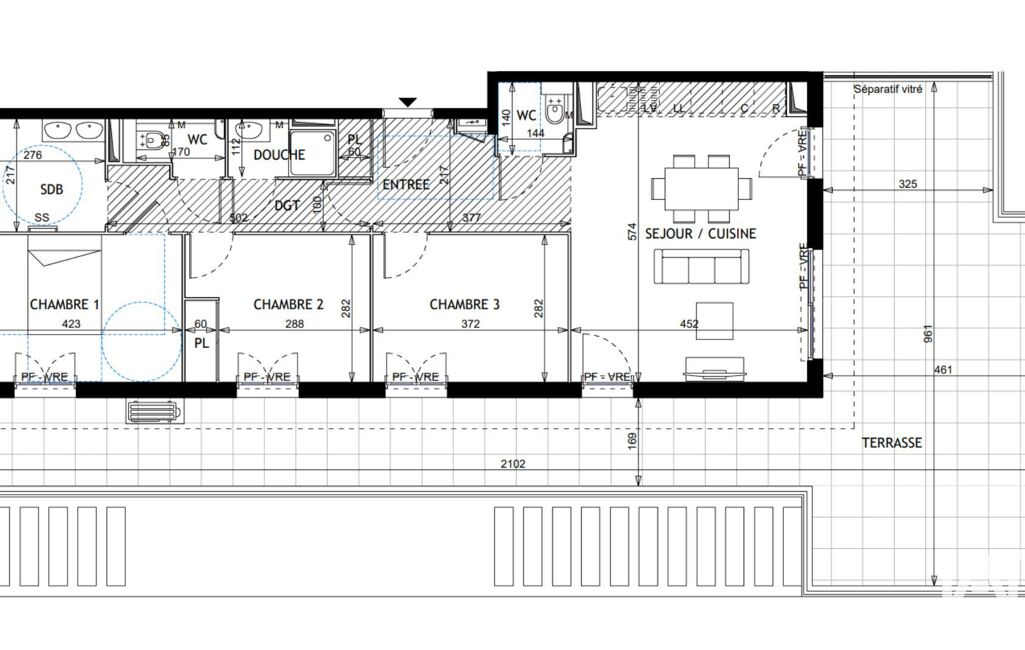
Situé au 2 ème étage, cet appartement T4 de 82 m² environ habitables se prolonge par une superbe terrasse de 69 m² environ.
- Séjour/cuisine de 25 m² environ ouvert sur la terrasse.
- Trois chambres confortables.
- Salle de bains et salle d’eau modernes.
- Annexes incluses : deux parkings privatifs.
De belles prestations :
- Chauffage par panneaux rayonnants électriques.
- Volets roulants motorisés dans toutes les pièces.
- Domotique intégrée pour piloter les volets, l’éclairage et le chauffage à distance.
- Résidence sécurisée avec ascenseur, vidéophone et parkings en sous-sol.
- Espaces paysagers et piscine au cOEur de la résidence pour un cadre de vie apaisé
L’art de vivre à Golfe-Juan :
- À 10 minutes à pied des plages et du port Camille Rayon.
- Proximité immédiate du Parc Exflora et des commerces du centre-ville.
- Accès rapide à Antibes, Cannes et à la technopole de Sophia-Antipolis.
- Quartier résidentiel calme, verdoyant et parfaitement desservi par les transports.
N’hésitez pas à me contacter pour plus d’informations ou pour un accompagnement sur mesure.
Honoraires d’agence à la charge du vendeur. Bien non soumis au DPE. Les informations sur les risques auxquels ce bien est exposé sont disponibles sur le site Géorisques : www.georisques.gouv.fr. La présente annonce immobilière a été rédigée sous la responsabilité éditoriale de Mlle Sarah Rozière EI (ID 83696), mandataire indépendant en immobilier (sans détention de fonds), agent commercial de la SAS I@D France immatriculé au RSAC de Clermont-Ferrand sous le numéro 978616993, titulaire de la carte de démarchage immobilier pour le compte de la société I@D France SAS.
Retrouvez tous nos biens sur notre site internet. www.iadfrance.fr
Mandat : 1823763-1
Diagnostic de Performance Énergétique (DPE)
Plus d'informations
-
Descriptif
- Étage du bien : 2eme
- Terrasse
- Ascenseur
- Nbre. d'étages : 3
- Nbre. de chambres : 3
- Nb. Parking : 1
- Nb. de pièces : 4
-
Equipement
- Câble TV
- Digicode
- Placards
- Chauffage : individuel electrique radiateur
- Interphone
-
Conditions
- Honoraires à charge de : vendeur
-
Superficies
- Surface habitable : 82 m²
Localisation
Contactez nous
Pour plus d'informations sur cette annonce, n'hésitez pas à nous contacter