Vente
Maison
à
Fayence
374 400 €
Fayence (83440)
iad France - Inès Querry (06 40 72 71 71) vous propose : EXCLUSIVITÉ – Villa 3 chambres avec jardin – Fayence – 84 m² environ
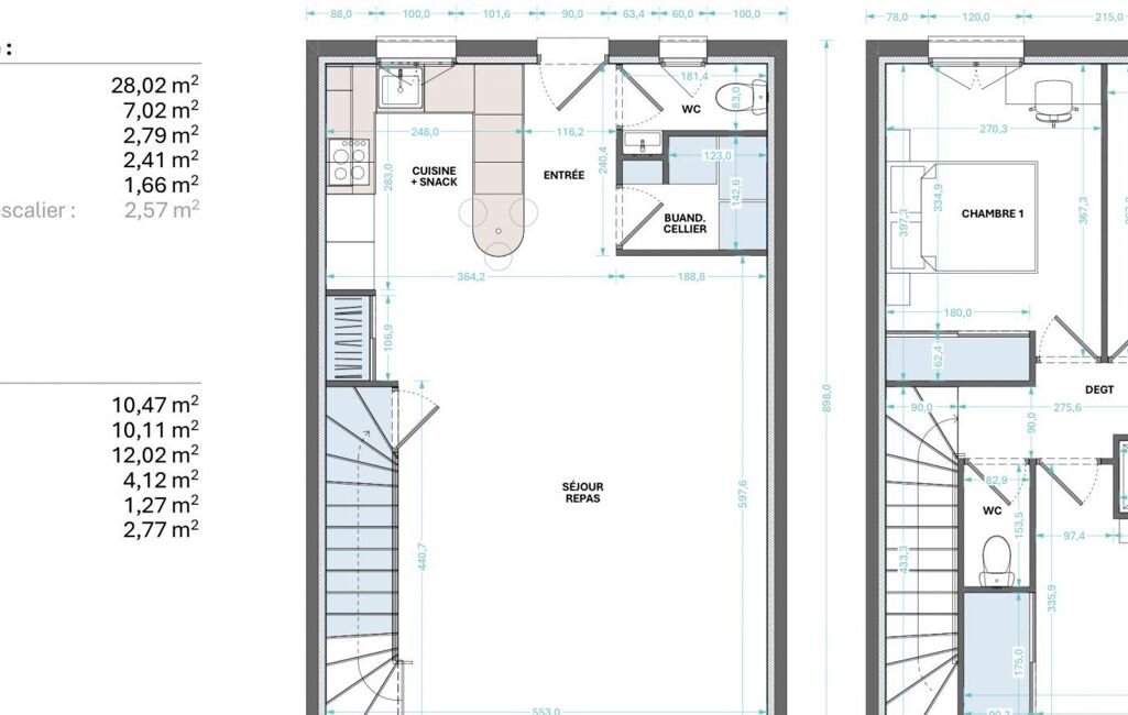
Sur les coteaux sud de Fayence, dans un environnement calme et recherché, découvrez cette villa en cours de construction, située dans un domaine intimiste de seulement 5 logements.
D’une surface d’environ 85 m² environ, elle offre un bel espace de vie lumineux avec cuisine ouverte, 3 chambres à l’étage, salle de bain et WC indépendant.
Implantée sur un terrain d’environ 140 m² environ, la maison bénéficie d’un jardin privatif d’environ 50 m² environ, idéal pour profiter du soleil toute l’année.
? Secteur recherché
? Accès village à pied
? Environnement résidentiel
? Fort potentiel résidence principale ou investissement
Bien rare sur le secteur.
Honoraires d’agence à la charge du vendeur. Bien non soumis au DPE. Les informations sur les risques auxquels ce bien est exposé sont disponibles sur le site Géorisques : www.georisques.gouv.fr. La présente annonce immobilière a été rédigée sous la responsabilité éditoriale de Mlle Inès Querry EI (ID 85184), mandataire indépendant en immobilier (sans détention de fonds), agent commercial de la SAS I@D France immatriculé au RSAC de Draguignan sous le numéro 419704796, titulaire de la carte de démarchage immobilier pour le compte de la société I@D France SAS.
Retrouvez tous nos biens sur notre site internet. www.iadfrance.fr
Mandat : 1930486-2
Diagnostic de Performance Énergétique (DPE)
Plus d'informations
-
Descriptif
- Nbre. d'étages : 1
- Nbre. de chambres : 3
- Nb. de pièces : 4
-
Equipement
- Chauffage : electrique
- Climatisation
-
Superficies
- Superficie terrain : 140 m²
- Surface habitable : 84 m²
-
Etat
- Année de construction : 2026
-
Conditions
- Honoraires à charge de : vendeur
Localisation
Contactez nous
Pour plus d'informations sur cette annonce, n'hésitez pas à nous contacter