Annonce détaillée

Vente
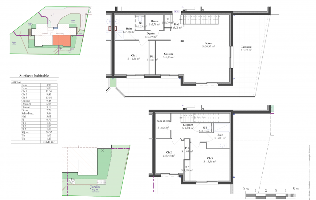
Maison à Choisy-Au-Bac
785 000 

Détails du bien

Pièce(s)
9 pièces
Salle(s) de bain
4
Surface
299 m²
Surface terrain
3000 m²
Orientation
-

Plus d'informations

  • Descriptif
    • Cave
    • Nb. de WC : 2
    • Nb. de salles de bain : 2
    • Nbre. de chambres : 4
    • Nb. Parking : 1
    • Nb. de pièces : 9
  • Superficies
    • Superficie terrain : 3000 m²
    • Surface habitable : 299 m²
  • Etat
    • Année de construction : 1995
  • Conditions
    • Honoraires à charge de : vendeur

Localisation

Contactez nous

Pour plus d'informations sur cette annonce, n'hésitez pas à nous contacter

Anne-Sophie Lagache

Annonce 3786 / 86235