Vente
Immeuble
à
Saint-Pierre
780 000 €
Saint-Pierre (97410)
iad France - Philippe N'doli vous propose: OPPORTUNITÉ INVESTISSEUR – IMMEUBLE À FORT POTENTIEL – TERRE SAINTE
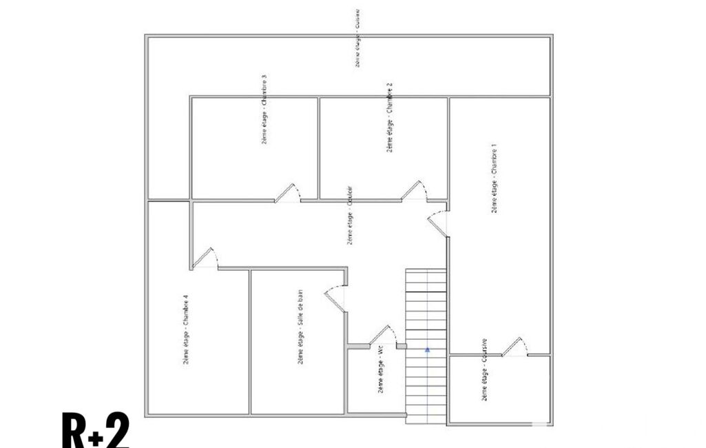
Situé en plein cOEur du quartier très prisé de Terre Sainte à Saint-Pierre, cet immeuble R+2 à rénover développe environ 300 m² exploitables, soit près de 100 m² par niveau, avec un fort potentiel de valorisation.
Le bien se compose d’un bâtiment principal sur trois niveaux offrant de beaux volumes et de nombreuses possibilités d’aménagement.
Il comprend également une dépendance d’environ 15 m² ainsi qu’un garage de 40 m².
Des travaux de rénovation sont à prévoir (électricité obsolète, remise au goût du jour), mais l’emplacement et les surfaces offrent une réelle opportunité de création de valeur.
!! IMPORTANT !! :
Le bien est situé dans un secteur éligible à des dispositifs d’aides à la rénovation, pouvant représenter un levier particulièrement intéressant pour un projet d’investissement.
Emplacement stratégique, à proximité immédiate du front de mer, des commerces, des restaurants et de toutes les commodités.
Une opportunité rare dans l’un des secteurs les plus recherchés de Saint-Pierre.
Contactez-moi rapidement pour plus d’informations et pour organiser une visite.
Honoraires d'agence à la charge du vendeur.
Bien non soumis au DPE. Les informations sur les risques auxquels ce bien est exposé, y compris l'obligation légale de débroussaillement, sont disponibles sur le site Géorisques : http://www.georisques.gouv.fr.
La présente annonce immobilière a été rédigée sous la responsabilité éditoriale de M Philippe N'doli mandataire indépendant en immobilier (sans détention de fonds), agent commercial de la SAS I@D France immatriculé au RSAC de Saint pierre de la reunion sous le numéro 512929894, titulaire de la carte de démarchage immobilier pour le compte de la société I@D France SAS.
Mandat : 1960270
Diagnostic de Performance Énergétique (DPE)
Plus d'informations
-
Descriptif
- Nbre. d'étages : 2
-
Etat
- Année de construction : 1980
-
Conditions
- Honoraires à charge de : vendeur
-
Superficies
- Surface habitable : 300 m²
Localisation
Contactez nous
Pour plus d'informations sur cette annonce, n'hésitez pas à nous contacter