Vente
Appartement
à
Cannes
429 000 €
Cannes (06400)
iad France - Elena Schmitt vous propose: Cannes – Petit Juas, rue Henri Paschke | T3 rénové, traversant, lumineux, au calme avec garage
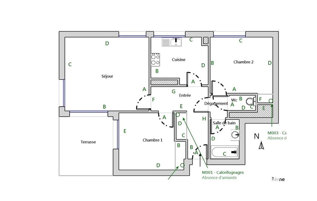
En bas du Petit Juas, à l’abri de l’agitation tout en restant à proximité immédiate du centre, cet appartement 3 pièces d’environ 61 m² offre un cadre de vie particulièrement agréable.
Situé au 3ᵉ étage avec ascenseur d’une résidence bien entretenue aux parties communes soignées, il bénéficie d’une triple exposition Sud–Ouest–Nord qui apporte une lumière naturelle continue, du milieu de journée jusqu’au soir.
Le séjour, ouvert sur une cuisine contemporaine, compose un espace de vie fluide et convivial. Deux chambres de 10m2 et 11m2, une salle de bains élégante, des WC indépendants et de nombreux rangements viennent structurer l’ensemble, entièrement rénové dans des tonalités sobres et actuelles. Climatisation reversible.
À l’extérieur, une terrasse carrée prolonge le séjour et offre une vue dégagée sur les toits de Cannes et les collines environnantes — une perspective ouverte, sans vis-à-vis direct.
L’adresse permet un quotidien simple et à pied :
Le Suquet et le marché Forville à environ 10 minutes à pieds
Palais des Festivals, plages, gare à environ 14 minutes à pieds
Une grande cave et un garage fermé en sous-sol de la résidence sont inclus dans le prix.
On peut acheter cet appartement sans le garage pour 399.000€
Un bien équilibré, lumineux et facile à vivre, adapté aussi bien en résidence principale qu’en pied-à-terre ou en investissement.
ENGLISH:
Cannes – Petit Juas, Rue Henri Paschke | Renovated 2-bedroom apartment, dual-aspect, bright, quiet, with garage
Located in the lower part of Petit Juas, in a მშვიდ and residential setting yet within immediate reach of the city centre, this 61 sqm 2-bedroom apartment offers a particularly pleasant living environment.
Set on the 3rd floor of a well-maintained residence with lift and carefully kept common areas, the apartment benefits from triple exposure (South–West–North), providing continuous natural light from late morning through to sunset.
The living room, open onto a contemporary kitchen, creates a fluid and welcoming living space. Two bedrooms (10 sqm and 11 sqm), an elegant bathroom, separate WC and ample storage complete the layout. The property has been fully renovated in a refined, modern style.
Air conditioning ensures optimal comfort throughout the year.
A square terrace extends the living space, offering open views over the rooftops of Cannes and the surrounding hills, with no direct overlooking.
Everything is within walking distance:
Le Suquet and Forville Market: approx. 10 minutes
Palais des Festivals, beaches and train station: approx. 14 minutes
A large cellar and a closed garage in the residence basement are included in the price.
This apartment can be purchased without the garage for €399,000.
DEUTSCH:
Cannes – Petit Juas, Rue Henri Paschke | Renovierte 3-Zimmer-Wohnung, durchgehend, hell, ruhig, mit Garage
In der unteren Lage von Petit Juas, ruhig gelegen und dennoch in unmittelbarer Nähe zum Stadtzentrum, bietet diese 3-Zimmer-Wohnung mit ca. 61 m² ein besonders angenehmes Wohnumfeld.
Die Wohnung befindet sich im 3. Stock einer gepflegten Residenz mit Aufzug und sehr ordentlichen Gemeinschaftsbereichen. Dank der dreifachen Ausrichtung (Süd–West–Nord) ist sie den ganzen Tag über lichtdurchflutet.
Das Wohnzimmer mit offener, moderner Küche schafft einen großzügigen und einladenden Wohnbereich. Zwei Schlafzimmer (10 m² und 11 m²), ein elegantes Badezimmer, ein separates WC sowie zahlreiche Staumöglichkeiten ergänzen das durchdachte Raumkonzept. Die Wohnung wurde vollständig und geschmackvoll renoviert.
Eine Klimaanlage sorgt ganzjährig für optimalen Komfort.
Eine quadratische Terrasse erweitert den Wohnraum und bietet einen freien Blick über die Dächer von Cannes und die umliegenden Hügel – ohne direkte Einsicht.
Alles ist bequem zu Fuß erreichbar:
Le Suquet und Markt Forville: ca. 10 Minuten
Palais des Festivals, Strände und Bahnhof: ca. 14 Minuten
Ein großer Keller sowie eine geschlossene Garage im Untergeschoss der Residenz sind im Preis inbegriffen. Diese Wohnung kann ohne Garage für 399.000 € erworben werden
Eine helle, ausgewogene und vielseitige Immobilie – ideal als Hauptwohnsitz, Zweitwohnsitz oder Kapitalanlage.
RUSSIAN
Канны – Petit Juas, улица Henri Paschke | Отремонтированная 3-комнатная квартира, сквозная, светлая, тихая, с гаражом
Расположенная в нижней части района Petit Juas, в спокойной жилой обстановке и в непосредственной близости от центра города, эта квартира площадью около 61 м² предлагает особенно комфортный уровень жизни.
Квартира находится на 3-м этаже ухоженной резиденции с лифтом и аккуратными общими зонами. Благодаря тройной ориентации (юг–запад–север) она наполнена естественным светом с конца утра до самого вечера.
Гостиная с открытой современной кухней формирует удобное и гармоничное пространство. Две спальни (10 м² и 11 м²), элегантная ванная комната, отдельный туалет и большое количество мест для хранения дополняют планировку. Квартира полностью отремонтирована в современном сдержанном стиле.
Система кондиционирования обеспечивает комфорт в любое время года.
Квадратная терраса расширяет жилое пространство и открывает приятный вид на крыши Канн и окружающие холмы, без прямого обзора со стороны соседей.
Всё находится в пешей доступности:
Старый город Le Suquet и рынок Forville — около 10 минут
Дворец фестивалей, пляжи и вокзал — около 14 минут
Большое подвальное помещение и закрытый гараж в подземном уровне резиденции включены в стоимость.
Эту квартиру можно приобрести без гаража за 399 000 €.
La presente annonce immobiliere vise 3 lots situés dans une copropriété de 130 lots au total et ne faisant l'objet d'aucune procédure en cours citée à l'article L. 721-1 du code de la construction et de l'habitation. Montant moyen mensuel de charges déclaré par le vendeur : 210€ par mois (soit 2520 € annuel). Honoraires d'agence à la charge du vendeur.
Information d'affichage énergétique sur ce bien : classe ENERGIE D indice 185 et classe CLIMAT D indice 40. Les informations sur les risques auxquels ce bien est exposé, y compris l'obligation légale de débroussaillement, sont disponibles sur le site Géorisques : http://www.georisques.gouv.fr.
La présente annonce immobilière a été rédigée sous la responsabilité éditoriale de Mme Elena Schmitt mandataire indépendant en immobilier (sans détention de fonds), agent commercial de la SAS I@D France immatriculé au RSAC de CANNES sous le numéro 928302132, titulaire de la carte de démarchage immobilier pour le compte de la société I@D France SAS.
Mandat : 1991036
Diagnostic de Performance Énergétique (DPE)
Plus d'informations
-
Descriptif
- Cave
- Étage du bien : 3eme
- Terrasse
- Ascenseur
- Nbre. d'étages : 6
- Nbre. de chambres : 1
- Nb. de pièces : 3
-
Equipement
- Digicode
- Chauffage : individuel electrique
- Interphone
- Climatisation
-
Loi ALUR
- Copropriété
- Nombre de lots de la copropriété : 130
- Moyenne de la quote part(an) : 2 520 €
-
Superficies
- Surface terrasse : 5 m²
- Superficie terrain : 5 m²
- Surface habitable : 60 m²
-
Etat
- Année de construction : 1977
-
Conditions
- Honoraires à charge de : vendeur
Localisation
Contactez nous
Pour plus d'informations sur cette annonce, n'hésitez pas à nous contacter