Vente
Maison
à
Favières
209 000 €
Favières (28170)
iad France - Mélanie Jolivet vous propose: Opportunité à quelques minutes de Châteauneuf en Thymerais et Thimert Gâtelles - 10 minutes de la gare SNCF de Courville sur Eure.
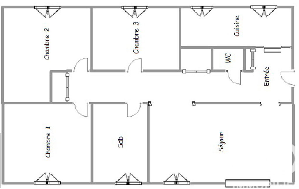
Découvrez ce pavillon de plain pied niché au cOEur d'une copropriété boisée.
Son entrée et son dégagement, dotés de placards de rangement, vous mèneront vers un séjour de plus de 28 m2, une cuisine séparée aménagée et équipée, trois belles chambres, une salle de bain aménagée avec douche et baignoire, et un WC.
Depuis le séjour, vous accéderez à la belle terrasse orientée Ouest.
Côté extérieur, un magnifique jardin arboré entièrement clos et parfaitement entretenu entoure la maison. Vous pourrez stationner de nombreux véhicules dans la cour ou dans le garage double doté d'un espace atelier et d'un grenier aménageable. Une petite dépendance en fond de parcelle pourra faire office de stockage ou rangement.
Vous noterez que ce pavillon présente une note énergétique très intéressante : il dispose d'une isolation extérieure, d'une isolation des combles en laine de roche, d'une chaudière individuelle gaz à condensation, d'un poêle à pellets, d'une ventilation mécanique contrôlée double flux, ainsi que d'un adoucisseur.
Pour encore plus de confort, les volets sont motorisés (tout comme le portail et les portes du garage), vous disposerez d'un interphone avec ouverture à distance, et la fibre est raccordée.
Vous recherchez une maison au calme et sans travaux ? Contactez vite votre conseillère !
La presente annonce immobiliere vise 1 lot situé dans une copropriété de 53 lots au total et ne faisant l'objet d'aucune procédure en cours citée à l'article L. 721-1 du code de la construction et de l'habitation. Montant moyen mensuel de charges déclaré par le vendeur : 33.33€ par mois (soit 400 € annuel). Honoraires d'agence à la charge du vendeur.
Information d'affichage énergétique sur ce bien : classe ENERGIE C indice 133 et classe CLIMAT C indice 27. Les informations sur les risques auxquels ce bien est exposé, y compris l'obligation légale de débroussaillement, sont disponibles sur le site Géorisques : http://www.georisques.gouv.fr.
La présente annonce immobilière a été rédigée sous la responsabilité éditoriale de Mme Mélanie Jolivet mandataire indépendant en immobilier (sans détention de fonds), agent commercial de la SAS I@D France immatriculé au RSAC de Chartres sous le numéro 914117734, titulaire de la carte de démarchage immobilier pour le compte de la société I@D France SAS.
Mandat : 1980713
Diagnostic de Performance Énergétique (DPE)
Plus d'informations
-
Descriptif
- Terrasse
- Nbre. de chambres : 3
- Nb. de pièces : 4
-
Loi ALUR
- Copropriété
- Nombre de lots de la copropriété : 53
- Moyenne de la quote part(an) : 400 €
-
Equipement
- Chauffage : gaz radiateur
- Interphone
-
Superficies
- Superficie terrain : 2596 m²
- Surface habitable : 106 m²
-
Etat
- Année de construction : 1971
-
Conditions
- Honoraires à charge de : vendeur
Localisation
Contactez nous
Pour plus d'informations sur cette annonce, n'hésitez pas à nous contacter