Vente
Maison
à
Opio
738 000 €
Opio (06650)
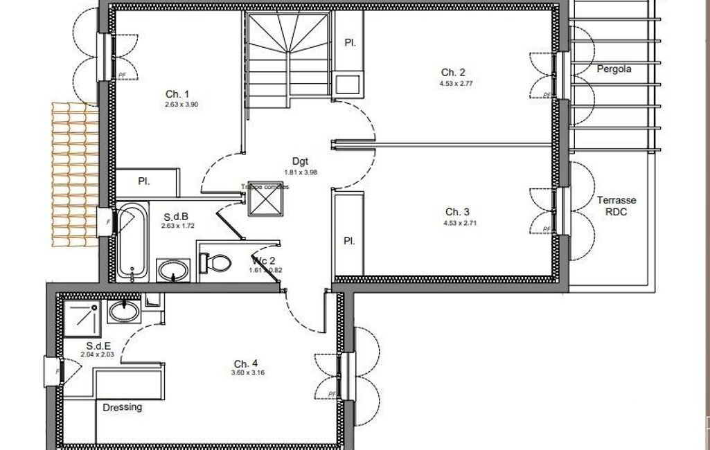
iad France - Guillaume Sueur (06 10 35 64 71) vous propose : Maison 5P de 110M2 environ à OPIO. Au calme et proche de toutes les commodités.
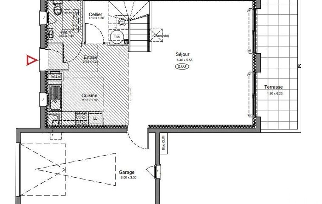
Beau séjour cuisine orienté Sud-Sud Ouest de 41M2 environ donnant sur une terrasse de 11m2 environ et un jardin de 81m2 environ.
Vue dégagée
Piscine dans la résidence.
Garage de 20M2 environ et un Parking
A VOIR RAPIDEMENT !
Honoraires d’agence à la charge du vendeur. Bien non soumis au DPE. Les informations sur les risques auxquels ce bien est exposé sont disponibles sur le site Géorisques : www.georisques.gouv.fr. La présente annonce immobilière a été rédigée sous la responsabilité éditoriale de M. Guillaume Sueur EI (ID 13733), mandataire indépendant en immobilier (sans détention de fonds), agent commercial de la SAS I@D France immatriculé au RSAC de GRASSE sous le numéro 808650865, titulaire de la carte de démarchage immobilier pour le compte de la société I@D France SAS.
Retrouvez tous nos biens sur notre site internet. www.iadfrance.fr
Mandat : 375521-4
Diagnostic de Performance Énergétique (DPE)
Plus d'informations
-
Equipement
- Câble TV
- Digicode
- Interphone
-
Descriptif
- Terrasse
- Nb. de pièces : 4
-
Etat
- Année de construction : 2024
-
Conditions
- Honoraires à charge de : vendeur
-
Superficies
- Surface habitable : 110 m²
Localisation
Contactez nous
Pour plus d'informations sur cette annonce, n'hésitez pas à nous contacter