Vente
Maison
à
Juillan
230 000 €
Juillan (65290)
iad France - Alexia Poli vous propose: **Opportunité à Juillan - Maison de plain pied 127 m2 - 5 chambres - terrain 924m2**
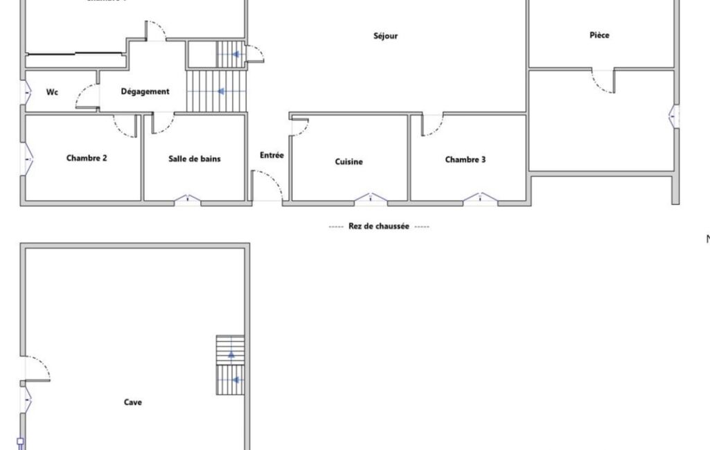
Vous rêvez de créer votre cocon personnalisé au cOEur de la charmante ville de Juillan ? Cette maison à fort potentiel n'attend que votre touche personnelle pour se transformer en un véritable havre de paix. Avec une surface de 127 m² habitables, cette maison offre de nombreuses possibilités d'aménagement, elle propose une pièce de vie de 40m2, baignée de lumière, une cuisine dînatoire séparée, 3 chambres dont 2 en enfilade, puis une partie nuit sur un niveau surélevé comprenant 2 chambres, une salle de bain et un wc séparé.
Vous bénéficierez en prime d'une cave de 35m2 accueillant l'espace buanderie et d'un préau de 30m2 pouvant recevoir 2 véhicules, servir de dépendance ou tout simplement de terrasse couverte. Vous apprécierez également sa grande terrasse (non couverte) exposée plein sud et son joli jardin façonné sur ses abords en espaliers. Un grand poulailler vient agrémenter le fond du jardin.
Pour la partie technique, l'habitation est chauffée par un poêle à granulés, un poêle à bois et des radiateurs électriques dans toutes les pièces. Le tableau électrique est aux normes, la plomberie en partie reprise et les toitures révisées. Le bien est raccordé au tout à l'égout.
Idéalement situé au coeur de Juillan, cette maison bénéficie d'un environnement calme et agréable. Profitez de la tranquillité de cette petite ville tout en ayant accès aux commodités et services à proximité. Les écoles, commerces et transports en commun se trouvent à quelques pas, facilitant ainsi votre quotidien.
Ne manquez pas cette opportunité rare d'investir sur un bien plein de potentiel sur un secteur très prisé!
Honoraires d'agence à la charge du vendeur.
Information d'affichage énergétique sur ce bien : classe ENERGIE D indice 218 et classe CLIMAT B indice 6. Les informations sur les risques auxquels ce bien est exposé, y compris l'obligation légale de débroussaillement, sont disponibles sur le site Géorisques : http://www.georisques.gouv.fr.
La présente annonce immobilière a été rédigée sous la responsabilité éditoriale de Mme Alexia Poli mandataire indépendant en immobilier (sans détention de fonds), agent commercial de la SAS I@D France immatriculé au RSAC de Tarbes sous le numéro 884087578, titulaire de la carte de démarchage immobilier pour le compte de la société I@D France SAS.
Mandat : 1985857
Diagnostic de Performance Énergétique (DPE)
Plus d'informations
-
Descriptif
- Nbre. d'étages : 2
- Nbre. de chambres : 5
- Nb. de pièces : 6
-
Superficies
- Superficie terrain : 924 m²
- Surface habitable : 127 m²
-
Conditions
- Honoraires à charge de : vendeur
Localisation
Contactez nous
Pour plus d'informations sur cette annonce, n'hésitez pas à nous contacter