Vente
Maison
à
Fayence
382 720 €
Fayence (83440)
iad France - Inès Querry (06 40 72 71 71) vous propose : EXCLUSIVITE-LE CLOS DU BANÉGON – Lot n°3
Fayence – Ancienne voie ferrée
Maison 4 pièces avec jardin – Un cadre de vie rare à Fayence
À quelques pas du village de Fayence, dans un environnement résidentiel particulièrement recherché pour son calme et sa qualité de vie, découvrez cette maison mitoyenne en duplex, actuellement en cours de réalisation, au sein d’un ensemble confidentiel de quelques habitations seulement. Frais de notaires avantageux.
Un lieu où l’on imagine immédiatement son quotidien, entre lumière, tranquillité et douceur de vivre.
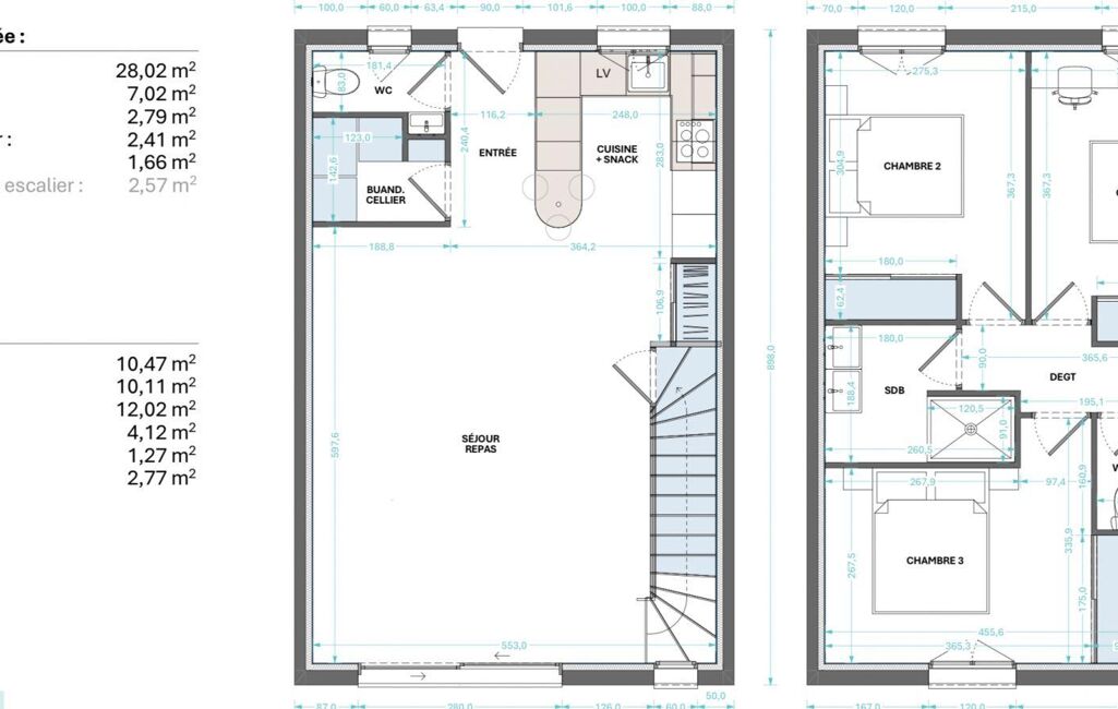
D’une surface d’environ 85 m² environ, la maison propose une distribution fluide et agréable à vivre, prolongée par un jardin privatif d’environ 60 m² environ, idéal pour profiter pleinement des beaux jours.
Agencement :
Au rez-de-chaussée
Une belle pièce de vie avec séjour et cuisine ouverte, largement tournée vers l’extérieur grâce à une grande baie vitrée coulissante
Une entrée avec rangements
Un WC indépendant
Un espace cellier / buanderie
À l’étage
Trois chambres confortables
Une salle de bains avec douche et double vasque
Un WC indépendant
Un dégagement optimisé
Les atouts du bien :
Belle luminosité tout au long de la journée
Volumes équilibrés et circulation agréable
Escalier au design soigné
Rangements intégrés
Architecture contemporaine parfaitement intégrée à son environnement
Un bien idéal pour :
une résidence principale confortable et facile à vivre
un premier achat dans un secteur recherché
un investissement patrimonial de qualité.
Contactez moi pour plus de renseignements
Honoraires d’agence à la charge du vendeur. Bien non soumis au DPE. Les informations sur les risques auxquels ce bien est exposé sont disponibles sur le site Géorisques : www.georisques.gouv.fr. La présente annonce immobilière a été rédigée sous la responsabilité éditoriale de Mlle Inès Querry EI (ID 85184), mandataire indépendant en immobilier (sans détention de fonds), agent commercial de la SAS I@D France immatriculé au RSAC de Draguignan sous le numéro 419704796, titulaire de la carte de démarchage immobilier pour le compte de la société I@D France SAS.
Retrouvez tous nos biens sur notre site internet. www.iadfrance.fr
Mandat : 1930486-3
Diagnostic de Performance Énergétique (DPE)
Plus d'informations
-
Equipement
- Placards
- Chauffage : electrique
- Climatisation
-
Descriptif
- Nbre. d'étages : 1
- Nbre. de chambres : 3
- Nb. de pièces : 4
-
Superficies
- Superficie terrain : 147 m²
- Surface habitable : 84 m²
-
Etat
- Année de construction : 2026
-
Conditions
- Honoraires à charge de : vendeur
Localisation
Contactez nous
Pour plus d'informations sur cette annonce, n'hésitez pas à nous contacter