Vente
Immeuble
à
Cannes
2 690 000 €
Cannes (06400)
iad France - Benoit Tordo vous propose: CANNES BANANE – HÔTEL 4 ÉTOILES À CRÉER OU RESIDENCE APPART / HOTEL – PROJET AUTORISÉ EN SURÉLÉVATION – EMPLACEMENT RARE À PROXIMITÉ IMMÉDIATE DE LA CROISETTE
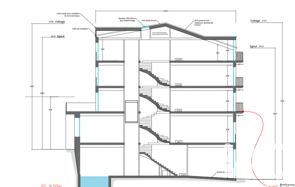
En PLEIN CENTRE DE CANNES, à quelques mètres à pied de la CROISETTE, du PALAIS DES FESTIVALS et de la GARE SNCF, ce projet de création d’un HÔTEL 4 ÉTOILES représente une OPPORTUNITÉ EXCEPTIONNELLE sur le marché cannois.
Situé dans un environnement CALME ET CENTRAL, le bâtiment bénéficie d’un PERMIS DE SURÉLÉVATION ACCEPTÉ, permettant le développement d’un établissement d’environ 450 M² DE SURFACE DE PLANCHER, parfaitement adapté à la forte demande touristique, professionnelle et événementielle de la ville.
CLARIFICATION IMPORTANTE :
Les TRAVAUX SERONT ENTIÈREMENT À LA CHARGE DU FUTUR ACQUÉREUR.
La présente vente concerne UNIQUEMENT L’IMMEUBLE ET LE FONDS DE COMMERCE HÔTELIER, permettant à l’acquéreur de développer son propre concept et son niveau de prestations.
Dossier complet, plans, études et projections comptables sur demande.
Honoraires d'agence à la charge du vendeur.
Information d'affichage énergétique sur ce bien : classe ENERGIE D indice 150 et classe CLIMAT D indice 31. Les informations sur les risques auxquels ce bien est exposé, y compris l'obligation légale de débroussaillement, sont disponibles sur le site Géorisques : http://www.georisques.gouv.fr.
La présente annonce immobilière a été rédigée sous la responsabilité éditoriale de M Benoit Tordo mandataire indépendant en immobilier (sans détention de fonds), agent commercial de la SAS I@D France immatriculé au RSAC de NICE sous le numéro 510521263, titulaire de la carte de démarchage immobilier pour le compte de la société I@D France SAS.
Mandat : 1892663
Diagnostic de Performance Énergétique (DPE)
Plus d'informations
-
Descriptif
- Cave
- Ascenseur
- Nbre. d'étages : 4
-
Equipement
- Chauffage : individuel electrique
- Climatisation
-
Etat
- Année de construction : 1920
-
Conditions
- Honoraires à charge de : vendeur
-
Superficies
- Surface habitable : 450 m²
Localisation
Contactez nous
Pour plus d'informations sur cette annonce, n'hésitez pas à nous contacter