Vente
Maison
à
Pont-sur-Yonne
257 000 €
Pont-sur-Yonne (89140)
iad France - Julien Morvand vous propose: Charme et confort au cOEur de Pont-sur-Yonne - Maison Traditionnelle de 134m² sur un terrain de 1073m²
Nichée dans un cadre verdoyant et paisible, cette magnifique maison traditionnelle vous offre un espace de vie chaleureux et fonctionnel, idéal pour une famille. Construite en 1999 et en excellent état général, cette propriété de plain-pied vous séduira par ses prestations de qualité et son ambiance conviviale.
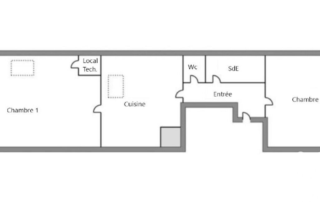
Dès l'entrée, vous serez accueilli par une belle pièce de vie lumineuse de 43.2m², comprenant un spacieux salon pour des moments de détente en famille et une salle à manger confortable pour des repas conviviaux.
Côté nuit, trois belles chambres (14m², 14.3m², 13.6m²) offrent des espaces de repos harmonieux. Deux salles d'eau et un WC indépendant viennent compléter l'espace nuit pour un confort optimal. Vous disposerez également d'une agréable terrasse de 48m² où vous pourrez vous détendre en admirant le jardin arboré.
Les grandes baies vitrées offrent une luminosité naturelle avec une belle exposition Sud propice à la détente et à la relaxation.
Le chauffage individuel, avec insert cheminée et convecteurs, assure une ambiance agréable en toute saison, tandis que la fibre optique vous garantit une connexion internet performante.
Côté extérieur, un garage ravira les amateurs de voitures, les bricoleurs ou les sportifs ayant du matériel. L'environnement calme et serein de cette maison en fait un lieu de vie idéal pour se ressourcer et profiter de la quiétude de Pont-sur-Yonne.
À proximité immédiate, vous trouverez toutes les commodités essentielles comme un supermarché, une station service, des restaurants, des commerces, des écoles maternelle, primaire et collège, etc...
Sur simple demande, Une visite virtuelle immersive ainsi qu’une vidéo sont disponibles pour explorer la maison à distance, des photos complémentaire ainsi que tous les documents utiles (diagnostics, plans, informations techniques) sur la plateforme EEMO vous seront fournis pour appréhender en toute transparence le potentiel du lieu.
Contactez-moi dès maintenant pour une visite et laissez-vous séduire par le potentiel de cette propriété pleine de charme.
Honoraires d'agence à la charge du vendeur.
Information d'affichage énergétique sur ce bien : classe ENERGIE D indice 243 et classe CLIMAT B indice 7. Les informations sur les risques auxquels ce bien est exposé, y compris l'obligation légale de débroussaillement, sont disponibles sur le site Géorisques : http://www.georisques.gouv.fr.
La présente annonce immobilière a été rédigée sous la responsabilité éditoriale de M Julien Morvand mandataire indépendant en immobilier (sans détention de fonds), agent commercial de la SAS I@D France immatriculé au RSAC de SENS sous le numéro 980058986, titulaire de la carte de démarchage immobilier pour le compte de la société I@D France SAS.
Mandat : 1963809
Diagnostic de Performance Énergétique (DPE)
Plus d'informations
-
Descriptif
- Terrasse
- Nbre. d'étages : 1
- Nbre. de chambres : 3
- Nb. de pièces : 5
-
Superficies
- Surface terrasse : 48 m²
- Superficie terrain : 1073 m²
- Surface habitable : 134 m²
-
Equipement
- Digicode
- Chauffage : electrique radiateur
-
Etat
- Année de construction : 1999
-
Conditions
- Honoraires à charge de : vendeur
Localisation
Contactez nous
Pour plus d'informations sur cette annonce, n'hésitez pas à nous contacter