Vente
Maison
à
Lannion
220 000 €
Lannion (22300)
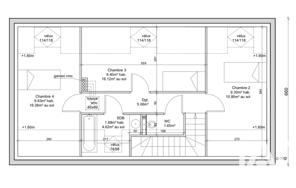
iad France - Clement Audren vous propose: LANNION - SERVEL – MAISON NEUVE - AU CALME - 4 CHAMBRES – TOUT LE CONFORT DE PLAIN-PIED - Séduction assurée pour cette maison de 2024. Au rez-de-chaussée sa cuisine aménagée et équipée s’ouvre sur son salon séjour, elle vous offre également UNE CHAMBRE, une salle d’eau ainsi que des WC. Chauffage au sol. À l’étage, un palier dessert TROIS CHAMBRES, une salle de bains et des WC. L'étage ne sera pas réalisé et sera à votre charge. Vous apprécierez sa terrasse exposée sud. Ne passez pas à côté de cette maison, appelez moi pour une visite !
Honoraires d'agence à la charge du vendeur.
Information d'affichage énergétique sur ce bien : classe ENERGIE A indice 32 et classe CLIMAT A indice 1. Les informations sur les risques auxquels ce bien est exposé, y compris l'obligation légale de débroussaillement, sont disponibles sur le site Géorisques : http://www.georisques.gouv.fr.
La présente annonce immobilière a été rédigée sous la responsabilité éditoriale de M Clement Audren mandataire indépendant en immobilier (sans détention de fonds), agent commercial de la SAS I@D France immatriculé au RSAC de SAINT BRIEUC sous le numéro 801844218, titulaire de la carte de démarchage immobilier pour le compte de la société I@D France SAS.
Mandat : 1977613
Diagnostic de Performance Énergétique (DPE)
Plus d'informations
-
Superficies
- Superficie terrain : 320 m²
- Surface habitable : 95 m²
-
Etat
- Année de construction : 2024
-
Conditions
- Honoraires à charge de : vendeur
-
Descriptif
- Nb. de pièces : 5
Localisation
Contactez nous
Pour plus d'informations sur cette annonce, n'hésitez pas à nous contacter