Vente
Appartement
à
Clermont-Ferrand
135 000 €
Clermont-Ferrand (63100)
iad France - Pierre Magerand (06 37 21 92 42) vous propose : Appartement 1 pièce avec balcon.
BIEN LIRE L'ANNONCE !
APPARTEMENT DISPONIBLE 2028 !
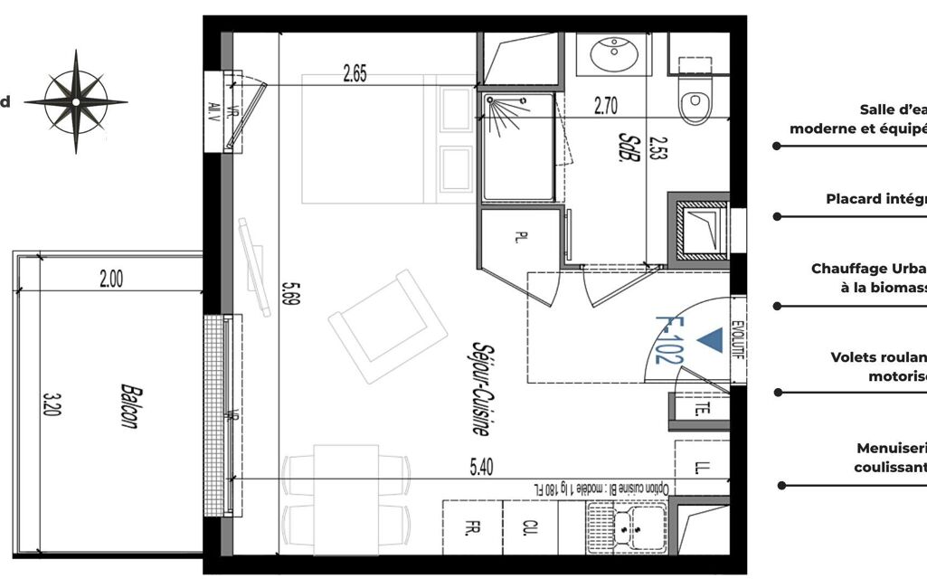
Situé au cOEur du projet emblématique Franc Rosier sur l'avenue de la République, ce studio offre une belle opportunité de vivre dans un écrin mêlant patrimoine historique et architecture contemporaine. Ce bien de 29 m² environ se trouve 1 er étage d'une résidence de standing entièrement sécurisée et équipée d'un ascenseur.
Dès l’entrée, vous serez séduit par une belle pièce de vie avec cuisine ouverte de 23 m² environ qui se prolonge par un balcon de 6 m² environ. Exposé Sud, cet extérieur vous offre l’exposition parfaite pour profiter d’un salon baigné de lumière tout au long de la journée.
Vivre ici, c’est intégrer un site historique où la chapelle et le petit noviciat reprennent vie au sein d’un parc paysager de 1 400 m² environ labellisé Biodiver’City. Vous profiterez d’un cadre de vie rare incluant des espaces d’expositions culturelles, un espace de coworking et une salle de sport privée.
La performance énergétique est au rendez-vous grâce au raccordement au réseau de chaleur urbain biomasse, garantissant un confort durable et des charges maîtrisées. Pas de travaux à prévoir et vous disposez d'une liberté de personnalisation pour créer un intérieur à votre image.
L'emplacement est tout simplement stratégique puisque le tramway se trouve au pied de l'immeuble pour rejoindre la place de Jaude en quinze minutes, tandis que le CHU Estaing et le stade Marcel-Michelin sont accessibles en quelques minutes à pied.
Augmentez votre capital en réduisant les frais de notaire et profitez d'un cadre de vie moderne, performant et clé en main.
Besoin de plus d'informations ou d'un accompagnement personnalisé ? N'hésitez pas à me contacter.
Honoraires d’agence à la charge du vendeur. Bien non soumis au DPE. Les informations sur les risques auxquels ce bien est exposé sont disponibles sur le site Géorisques : www.georisques.gouv.fr. La présente annonce immobilière a été rédigée sous la responsabilité éditoriale de M. Pierre Magerand EI (ID 86098), mandataire indépendant en immobilier (sans détention de fonds), agent commercial de la SAS I@D France immatriculé au RSAC de Cusset sous le numéro 938729175, titulaire de la carte de démarchage immobilier pour le compte de la société I@D France SAS.
Retrouvez tous nos biens sur notre site internet. www.iadfrance.fr
Mandat : 1974946-6
Diagnostic de Performance Énergétique (DPE)
Plus d'informations
-
Descriptif
- Étage du bien : 1er
- Ascenseur
- Nbre. d'étages : 9
- Nb. de pièces : 1
-
Equipement
- Câble TV
- Digicode
- Placards
- Interphone
-
Conditions
- Honoraires à charge de : vendeur
-
Superficies
- Surface habitable : 29 m²
Localisation
Contactez nous
Pour plus d'informations sur cette annonce, n'hésitez pas à nous contacter