Vente
Appartement
à
Suresnes
790 000 €
Suresnes (92150)
iad France - Pascale Legay vous propose: Dans le quartier recherché des Raguidelles, venez visiter cet appartement familial de 150 m2 dans une résidence calme et sécurisée avec Gardien.
Situé à 5 min. à pied des commerces de la rue Edouard Vaillant et 7 min. du tram T2 (Suresnes Longchamp) et 10 min. de la gare SNCF L/U (Suresnes Mont-Valérien) .
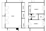
Ce bien est très lumineux et spacieux, la distribution est optimum avec un espace jour et une espace nuit bien distinct
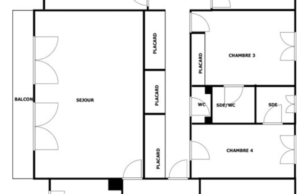
Vous pourrez profiter d'un double séjour prolongé d'un balcon/terrasse avec vue panoramique exceptionnelle sur Paris (Montmartre, Arc de Triomphe, tour Eiffel )
La cuisine moderne est aménagée et équipée.
Les espaces nuits sont constitués de 5 chambres et 3 salles de bain/Douche récentes
Nombreux rangements
Sectorisation scolaire : école des Raguidelles à proximité immédiate.
Les charges comprennent : gardien, chauffage, eau chaude et l'entretien des espaces vert. Au sous sol, une place de Parking et une cave complètent ce bien
local vélos dans la résidence
Aucun travaux à prévoir
Honoraires d'agence à la charge du vendeur.
Information d'affichage énergétique sur ce bien : classe ENERGIE D indice 181 et classe CLIMAT D indice 39. Les informations sur les risques auxquels ce bien est exposé, y compris l'obligation légale de débroussaillement, sont disponibles sur le site Géorisques : http://www.georisques.gouv.fr.
La présente annonce immobilière a été rédigée sous la responsabilité éditoriale de Mme Pascale Legay mandataire indépendant en immobilier (sans détention de fonds), agent commercial de la SAS I@D France immatriculé au RSAC de NANTERRE sous le numéro 841252174, titulaire de la carte de démarchage immobilier pour le compte de la société I@D France SAS.
Mandat : 1772343
Diagnostic de Performance Énergétique (DPE)
Plus d'informations
-
Descriptif
- Cave
- Étage du bien : 2eme
- Gardien
- Terrasse
- Ascenseur
- Nbre. d'étages : 3
- Nbre. de chambres : 5
- Nb. Parking : 1
- Nb. de pièces : 6
-
Equipement
- Digicode
- Chauffage : collectif gaz
- Interphone
-
Etat
- Année de construction : 1970
-
Conditions
- Honoraires à charge de : vendeur
-
Superficies
- Surface habitable : 150 m²
Localisation
Contactez nous
Pour plus d'informations sur cette annonce, n'hésitez pas à nous contacter