Vente
Local commercial
à
Rennes
448 500 €
Rennes (35000)
iad France - Marie-Catherine Prat vous propose: Appartement d’exception T4 – Vue dégagée sur les quais – Parking A TRANSFORMER EN BUREAU
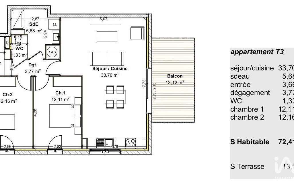
Je vous propose ce magnifique appartement d’environ 97 m², idéalement situé en plein centre-ville de Rennes, au sein d’un élégant immeuble du XIXᵉ siècle sécurisé et actuellement en cours de travaux complète prévu pour septembre 2026, mettra en valeur le cachet architectural de l’immeuble tout en intégrant des prestations contemporaines de qualité.
La façade sera sublimée et l’harmonie entre parquet d’origine, hauteur sous plafond, grandes ouvertures et confort moderne offrira un cadre de vie rare, associant authenticité et élégance actuelle.
Cet appartement T4 à la distribution soignée se compose :
- d’une entrée accueillante,
- d’un séjour lumineux bénéficiant d’une vue dégagée sur les quais,
- d’une cuisine indépendante avec cellier,
- de trois chambres spacieuses,
- d’une salle de bains, d’une salle d’eau et de WC séparés.
Possibilité de créer 5 bureaux individuelles et des pièces communes pour le confort de votre salarié.
Il est complété par une cave et un grenier, offrant des espaces de rangement appréciables, ainsi qu’un emplacement de stationnement dans la cour commune.
Sa situation privilégiée, à proximité immédiate des commerces, des transports et des berges de la Vilaine, garantit un environnement recherché, alliant mobilité, calme urbain et qualité de vie.
La presente annonce immobiliere vise 3 lots situés dans une copropriété de 98 lots au total et ne faisant l'objet d'aucune procédure en cours citée à l'article L. 721-1 du code de la construction et de l'habitation. Montant moyen mensuel de charges déclaré par le vendeur : 96€ par mois (soit 1152 € annuel). Honoraires d'agence à la charge du vendeur.
Bien non soumis au DPE. Les informations sur les risques auxquels ce bien est exposé, y compris l'obligation légale de débroussaillement, sont disponibles sur le site Géorisques : http://www.georisques.gouv.fr.
La présente annonce immobilière a été rédigée sous la responsabilité éditoriale de Mme Marie-Catherine Prat mandataire indépendant en immobilier (sans détention de fonds), agent commercial de la SAS I@D France immatriculé au RSAC de RENNES sous le numéro 883502809, titulaire de la carte de démarchage immobilier pour le compte de la société I@D France SAS.
Mandat : 2016433
Diagnostic de Performance Énergétique (DPE)
Plus d'informations
-
Loi ALUR
- Copropriété
- Nombre de lots de la copropriété : 98
- Moyenne de la quote part(an) : 1 152 €
-
Etat
- Année de construction : 1930
-
Conditions
- Honoraires à charge de : vendeur
-
Superficies
- Surface habitable : 96 m²
Localisation
Contactez nous
Pour plus d'informations sur cette annonce, n'hésitez pas à nous contacter