Vente
Appartement
à
Nice
780 000 €
Nice (06000)
iad France - Hugo Février vous propose: Sublime Appartement de Caractère à Nice - Belle époque / Beaux-arts - Avenue Jean Médecin - 6 pièces
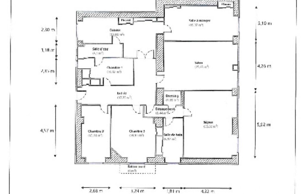
Découvrez ce magnifique appartement de 164m², situé au cOEur de Nice, dans un immeuble de caractère datant de 1880 qui était un ancien hôtel de luxe ou se passaient les plus belles soirées mondaines fin XIX siècle. Avec une hauteur sous plafond de près de 4m, niché au 3ème étage sur 5, cet appartement unique offre un cadre de vie exceptionnel alliant le charme de l'ancien et l'hyper centre ville.
Les 4 chambres spacieuses raviront toute la famille, offrant confort et intimité. La salle de bain et la salle d'eau ainsi que les 2 WC complètent l'espace nuit. La cuisine équipée, la salle à manger et l'entrée desservent harmonieusement les différentes pièces de vie.
Pour votre confort, la résidence est équipée d'un ascenseur ( à partir du 1er étage). Une cave complète ce bien.
Avec un cadre de vie exceptionnel, cet appartement est idéalement situé à proximité des commerces, des transports en commun et des écoles.
Des travaux sont à prévoir pour sublimer cet appartement plein de potentiel et en faire un véritable cocon de caractère.
Egalement idéal pour profession libérale.
Ne manquez pas l'opportunité d'acquérir ce bien d'exception à Nice. Contactez-nous pour organiser une visite dès maintenant !
TRACFIN : Conformément à l’article L561-5 du Code Monétaire et Financier, pour l’organisation de toute visite, la présentation d’une pièce d’identité vous sera demandée.
La presente annonce immobiliere vise 2 lots situés dans une copropriété de 22 lots au total et ne faisant l'objet d'aucune procédure en cours citée à l'article L. 721-1 du code de la construction et de l'habitation. Montant moyen mensuel de charges déclaré par le vendeur : 254€ par mois (soit 3048 € annuel). Honoraires d'agence à la charge du vendeur.
Information d'affichage énergétique sur ce bien : classe ENERGIE C indice 120 et classe CLIMAT C indice 25. Les informations sur les risques auxquels ce bien est exposé, y compris l'obligation légale de débroussaillement, sont disponibles sur le site Géorisques : http://www.georisques.gouv.fr.
La présente annonce immobilière a été rédigée sous la responsabilité éditoriale de M Hugo Février mandataire indépendant en immobilier (sans détention de fonds), agent commercial de la SAS I@D France immatriculé au RSAC de CANNES sous le numéro 490408465, titulaire de la carte de démarchage immobilier pour le compte de la société I@D France SAS.
Mandat : 1860726
Diagnostic de Performance Énergétique (DPE)
Plus d'informations
-
Descriptif
- Cave
- Étage du bien : 3eme
- Ascenseur
- Nbre. d'étages : 5
- Nbre. de chambres : 4
- Nb. de pièces : 6
-
Equipement
- Câble TV
- Placards
- Chauffage : individuel gaz radiateur
-
Loi ALUR
- Copropriété
- Nombre de lots de la copropriété : 22
- Moyenne de la quote part(an) : 3 048 €
-
Etat
- Année de construction : 1880
-
Conditions
- Honoraires à charge de : vendeur
-
Superficies
- Surface habitable : 164 m²
Localisation
Contactez nous
Pour plus d'informations sur cette annonce, n'hésitez pas à nous contacter