Vente
Maison
à
Bonnières-sur-Seine
275 000 €
Bonnières-sur-Seine (78270)
iad France - Florian Voisin vous propose: Située à Freneuse à seulement 6 min de Bonnières-sur-Seine dans un environnement calme et recherché.
À vendre : Maison individuelle, édifiée en limite séparative d’un côté, avec un garage et sa mezzanine de rangement, le tout sur un terrain de 819 m².
Surface habitable de 92.65m2 / Surface au sol 105m2
AGENCEMENT :
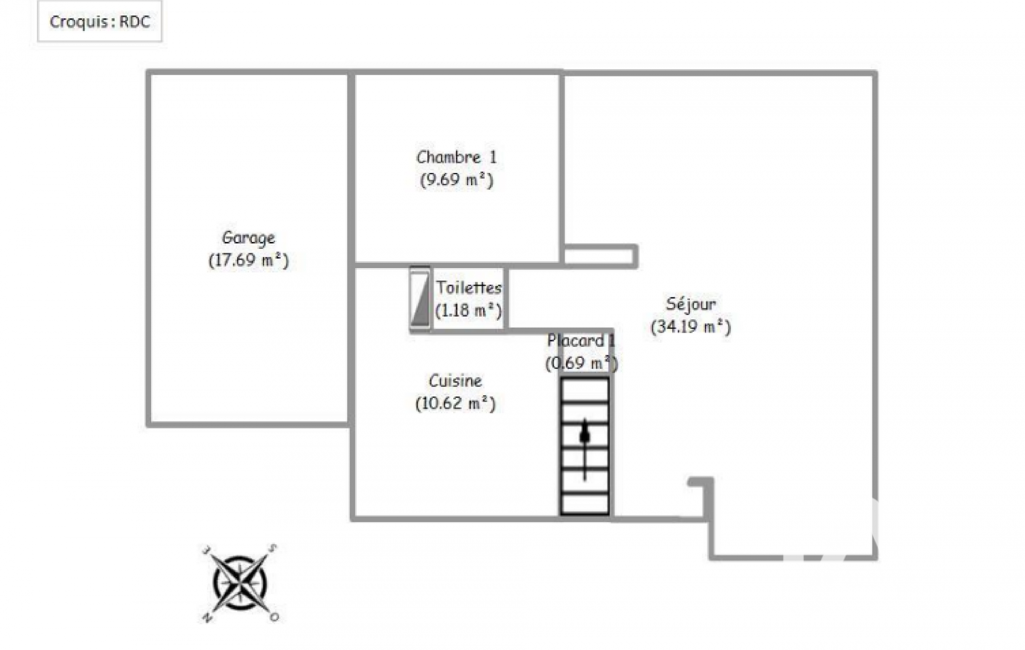
Au rez-de-chaussée, un salon traversant lumineux, une chambre, un WC indépendant ainsi qu’une cuisine fermée et équipée donnant accès directement au garage avec mezzanine.
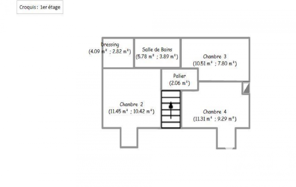
À l’étage, un palier dessert trois chambres et une salle de bains avec WC.
EXTÉRIEUR :
Un terrain clos de 819 m² avec un parking à l’avant et une terrasse à l’arrière. Possibilité de stationner plusieurs véhicules.
ÉQUIPEMENTS :
Portail motorisé, store banne motorisé, volets roulants électriques, menuiseries PVC double vitrage oscillo-battants, VMC, radiateurs électriques individuels, fibre optique et raccordement au tout-à-l’égout.
Le poêle à bois ne restera pas.
LOCALISATION :
La commune de Freneuse offre un cadre idéal pour la vie de famille, avec écoles maternelle et primaire sur place, collèges et lycées accessibles par transports scolaires. Les gares SNCF de Bonnières-sur-Seine et de Rosny-sur-Seine (ligne J vers Paris Saint-Lazare) sont à proximité. Commerces de proximité et supermarchés sont facilement accessibles, tout comme les associations sportives et culturelles.
DPE : D / GES : B
Horaires de visite adaptés à votre emploi du temps.
Honoraires d'agence à la charge du vendeur.
Information d'affichage énergétique sur ce bien : classe ENERGIE D indice 245 et classe CLIMAT B indice 8. Les informations sur les risques auxquels ce bien est exposé, y compris l'obligation légale de débroussaillement, sont disponibles sur le site Géorisques : http://www.georisques.gouv.fr.
La présente annonce immobilière a été rédigée sous la responsabilité éditoriale de M Florian Voisin mandataire indépendant en immobilier (sans détention de fonds), agent commercial de la SAS I@D France immatriculé au RSAC de versailles sous le numéro 890498223, titulaire de la carte de démarchage immobilier pour le compte de la société I@D France SAS.
Mandat : 1944338
Diagnostic de Performance Énergétique (DPE)
Plus d'informations
-
Descriptif
- Terrasse
- Nbre. d'étages : 1
- Nbre. de chambres : 4
- Nb. de pièces : 5
-
Equipement
- Câble TV
- Chauffage : electrique radiateur
-
Superficies
- Superficie terrain : 820 m²
- Surface habitable : 105 m²
-
Etat
- Année de construction : 1996
-
Conditions
- Honoraires à charge de : vendeur
Localisation
Contactez nous
Pour plus d'informations sur cette annonce, n'hésitez pas à nous contacter