Vente
Appartement
à
Ville-la-Grand
759 500 €
Ville-la-Grand (74100)
iad France - Pierre Magerand (06 37 21 92 42) vous propose : Appartement T5 avec terrasse à Ville-la-Grand.
Au cOEur de la résidence contemporaine L’EDEN, située rue de l’Espérance à Ville-la-Grand, découvrez une adresse élégante à la frontière suisse qui associe confort moderne, qualité architecturale et qualité de vie. La résidence, conçue comme une véritable oasis urbaine, propose des espaces verts paysagers, un jardin signature favorisant la biodiversité et des commerces de proximité. Disponible 2026.
Un appartement raffiné :
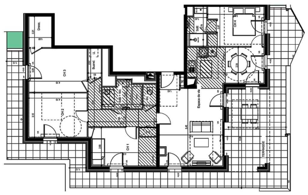
Situé au 4 ème étage, cet appartement T5 de 112 m² environ habitables se prolonge par une grande terrasse de 70 m² environ.
- Séjour/cuisine de 40 m² environ.
- Quatre chambres confortables dont une suite parentale.
- Salle de bains moderne et wc séparés.
- Annexes incluses : Un box en sous-sol sécurisé et une cave.
De belles prestations :
- Résidence conforme à la Réglementation Environnementale 2020 (bâtiment basse consommation).
- Volets roulants électriques.
- Chauffage collectif au bois par vecteur air, sans radiateurs apparents.
- Résidence sécurisée : accès par visiophone et caméras, parkings en sous-sol, local vélos.
L’art de vivre à Ville-la-Grand :
- Centre-bourg à 400 m avec commerces, restaurants et marché dominical.
- Nombreux établissements scolaires à proximité (de la maternelle au lycée).
- Gare SNCF d’Annemasse et Léman Express accessibles en quelques minutes (Genève centre en 25 min).
- Ville dynamique et verdoyante avec parcs, équipements sportifs et vie culturelle riche.
N’hésitez pas à me contacter pour plus d’informations ou pour un accompagnement sur mesure.
Honoraires d’agence à la charge du vendeur. Bien non soumis au DPE. Les informations sur les risques auxquels ce bien est exposé sont disponibles sur le site Géorisques : www.georisques.gouv.fr. La présente annonce immobilière a été rédigée sous la responsabilité éditoriale de M. Pierre Magerand EI (ID 86098), mandataire indépendant en immobilier (sans détention de fonds), agent commercial de la SAS I@D France immatriculé au RSAC de Cusset sous le numéro 938729175, titulaire de la carte de démarchage immobilier pour le compte de la société I@D France SAS.
Retrouvez tous nos biens sur notre site internet. www.iadfrance.fr
Mandat : 1856436-25
Diagnostic de Performance Énergétique (DPE)
Plus d'informations
-
Descriptif
- Étage du bien : 4eme
- Terrasse
- Ascenseur
- Nbre. d'étages : 4
- Nbre. de chambres : 4
- Nb. de pièces : 5
-
Equipement
- Câble TV
- Digicode
- Interphone
-
Conditions
- Honoraires à charge de : vendeur
-
Superficies
- Surface habitable : 112 m²
Localisation
Contactez nous
Pour plus d'informations sur cette annonce, n'hésitez pas à nous contacter