Vente
Maison
à
Auriol
615 000 €
Auriol (13390)
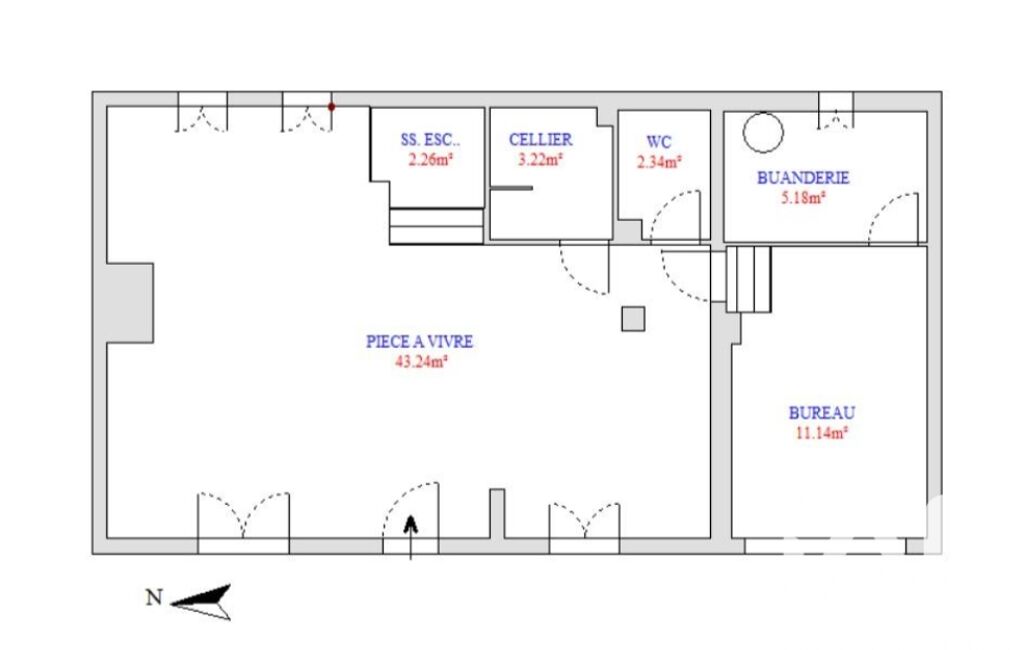
iad France - Pierre LOMBARD vous propose: NOUVEAU - EXCLUSIVITE - AURIOL - Moulin de Redon, en position dominante avec une jolie vue sur le massif de la Lare et le Garlaban, au calme, maison T5 de 110m² sur une parcelle de 1883m². Le bien se compose comme suit : séjour - cuisine de 46m², une pièce aménagée de 12m², une buanderie donnant accès à un grand grenier exploitable pour du rangement, un cellier et un wc indépendant. A l'étage : trois chambres avec placards et une salle d'eau avec wc. A l'extérieur une piscine 7*3.5, un coin du jardin aménagé en poulailler, un terrain de pétanque et un beau parking. Informations complémentaires : chauffage par climatisation réversible et par,insert, tout à l'égout, fibre, taxe foncière 1778€, panneaux solaires permettant une diminution des frais d'électricité d'environ 50% et chauffe eau solaire.
Honoraires d'agence à la charge du vendeur.
Information d'affichage énergétique sur ce bien : classe ENERGIE C indice 167 et classe CLIMAT A indice 5. Les informations sur les risques auxquels ce bien est exposé, y compris l'obligation légale de débroussaillement, sont disponibles sur le site Géorisques : http://www.georisques.gouv.fr.
La présente annonce immobilière a été rédigée sous la responsabilité éditoriale de M Pierre LOMBARD mandataire indépendant en immobilier (sans détention de fonds), agent commercial de la SAS I@D France immatriculé au RSAC de MARSEILLE sous le numéro 904532629, titulaire de la carte de démarchage immobilier pour le compte de la société I@D France SAS.
Mandat : 1929595
Diagnostic de Performance Énergétique (DPE)
Plus d'informations
-
Descriptif
- Terrasse
- Nbre. d'étages : 1
- Nbre. de chambres : 4
- Nb. de pièces : 5
-
Equipement
- Câble TV
- Chauffage : electrique
- Climatisation
-
Superficies
- Superficie terrain : 1883 m²
- Surface habitable : 110 m²
-
Extérieur
- Piscine
-
Etat
- Année de construction : 2005
-
Conditions
- Honoraires à charge de : vendeur
Localisation
Contactez nous
Pour plus d'informations sur cette annonce, n'hésitez pas à nous contacter