Vente
Maison
à
Bonsmoulins
790 000 €
Bonsmoulins (61380)
iad France - Elodie Bruaux vous propose: Une demeure de caractère du XVIIIe siècle au cOEur du Perche
Édifiée aux alentours de 1700, cette maison de caractère incarne toute la noblesse du patrimoine percheron. Nichée dans un environnement paisible et verdoyant, elle offre à ses futurs propriétaires un cadre de vie rare, à la fois authentique et raffiné, tout en étant située à proximité des villes de L’Aigle et de Mortagne-au-Perche.
Dès l’entrée, le charme opère. Les poutres apparentes, les volumes généreux et la lumière traversante confèrent au séjour une atmosphère chaleureuse et conviviale, magnifiée par une cheminée d’époque qui rappelle l’âme des demeures anciennes. Dans la continuité, une cuisine moderne et parfaitement équipée allie fonctionnalité et élégance, créant un espace où tradition et modernité dialoguent avec harmonie.
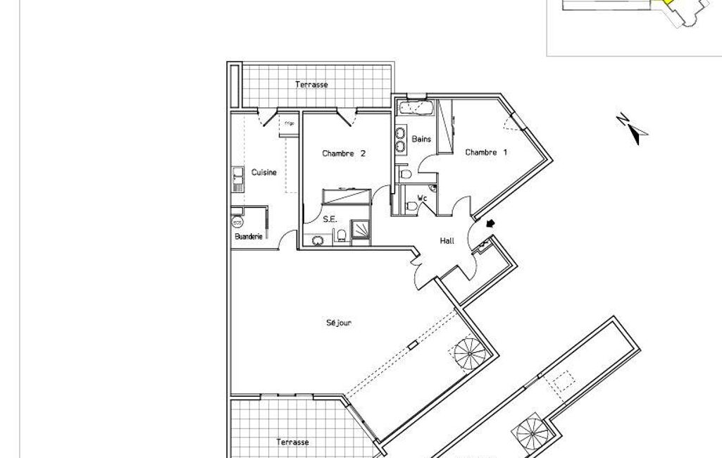
Le rez-de-chaussée dévoile ensuite des espaces pensés pour le confort et la sérénité. Une bibliothèque accueillante peut facilement se transformer en chambre selon les besoins, tandis qu’un bureau élégant, doté d’une cheminée avec insert, offre un cadre propice au travail ou à la lecture. Véritable atout de la maison, une suite parentale spacieuse et raffinée prend également place à ce niveau. Elle dispose de sa salle d’eau, d’un dressing séparé et d’une cheminée avec insert, conjuguant ainsi charme ancien et confort contemporain.
L’étage propose un vaste plateau modulable, idéal pour une salle de jeux, un salon secondaire ou encore l’aménagement de chambres supplémentaires. Deux grandes chambres lumineuses complètent ce niveau, accompagnées d’une salle de douche avec WC.
Au-delà de la maison principale, la propriété révèle des prestations d’exception. Un bâtiment indépendant d’environ 200 m², à la remarquable hauteur sous plafond, accueille aujourd’hui une grande salle mais peut tout aussi bien devenir un lieu d’évènements, une salle de sport ou être réhabilité en habitation. Une cave vient compléter cet ensemble, idéale pour les amateurs de vin et de conservation.
Enfin, la piscine récente, habillée de pierres de Bourgogne et sublimée par un liner noir, s’intègre avec élégance dans le paysage. Sa couleur naturelle confère à l’eau une profondeur unique, en parfaite harmonie avec la vue dégagée sur la campagne environnante.
Cette demeure du XVIIIe siècle, où chaque poutre et cheminée raconte une histoire, incarne un art de vivre unique. Un lieu rare, qui conjugue prestige discret, authenticité et confort moderne, dans un environnement privilégié où règnent calme et sérénité.
Honoraires d'agence à la charge du vendeur.
Information d'affichage énergétique sur ce bien : classe ENERGIE D indice 249 et classe CLIMAT B indice 9. Les informations sur les risques auxquels ce bien est exposé, y compris l'obligation légale de débroussaillement, sont disponibles sur le site Géorisques : http://www.georisques.gouv.fr.
La présente annonce immobilière a été rédigée sous la responsabilité éditoriale de Mme Elodie Bruaux mandataire indépendant en immobilier (sans détention de fonds), agent commercial de la SAS I@D France immatriculé au RSAC de VERSAILLES sous le numéro 813004363, titulaire de la carte de démarchage immobilier pour le compte de la société I@D France SAS.
Mandat : 1850735
Diagnostic de Performance Énergétique (DPE)
Plus d'informations
-
Equipement
- Cheminée
- Chauffage : electrique radiateur
-
Descriptif
- Nbre. de chambres : 4
- Nb. de pièces : 8
-
Superficies
- Superficie terrain : 4000 m²
- Surface habitable : 243 m²
-
Extérieur
- Piscine
-
Etat
- Année de construction : 1800
-
Conditions
- Honoraires à charge de : vendeur
Localisation
Contactez nous
Pour plus d'informations sur cette annonce, n'hésitez pas à nous contacter