Vente
Maison de ville
à
Loches
218 400 €
Loches (37600)
iad France - Carole Renaudin vous propose: MAISON DE VILLE AVEC JARDIN au cOEur de Loches.
Idéalement située en centre-ville de Loches, cette authentique maison de ville et de caractère de 150 m² env. en pierre de tuffeau sur 3 niveaux allie caractère, volumes généreux et vie paisible dans un jardin bucolique.
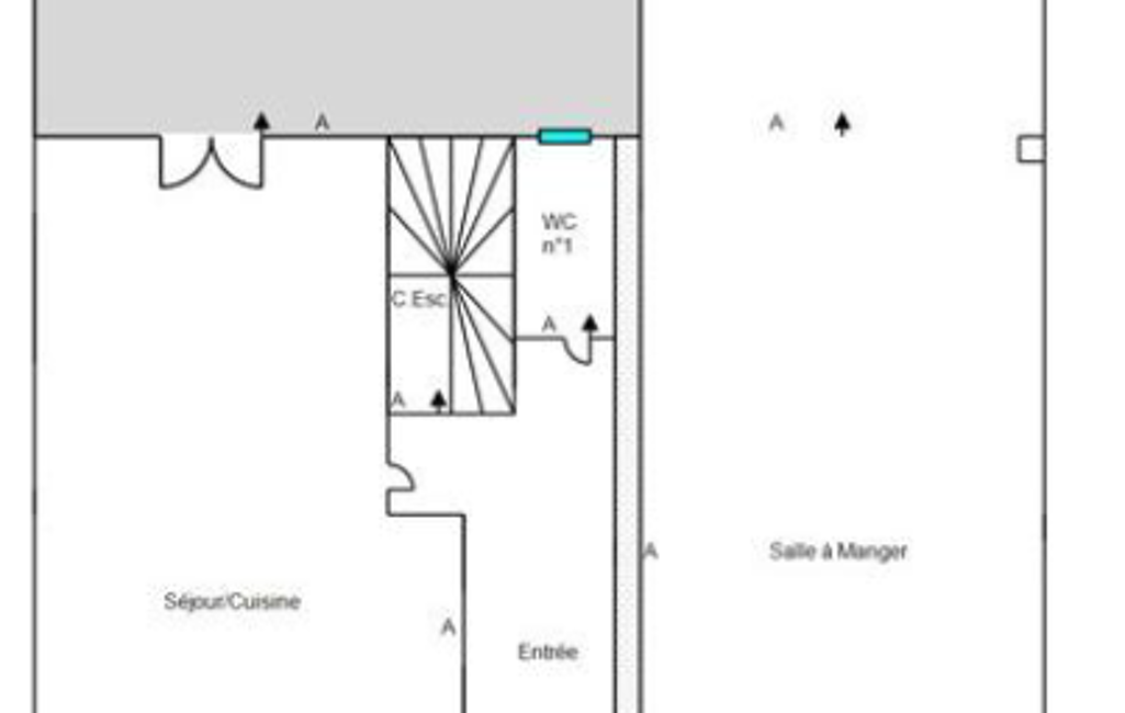
Dès l’entrée, un couloir vous guide vers une cuisine aménagée ouverte sur une conviviale salle à manger et sur une terrasse exposée Est, parfaite pour les repas en famille. Un agréable salon/séjour traversant, baigné de lumière complète ce niveau, ainsi qu’un WC indépendant.
Le premier étage propose un espace nuit confortable composé de trois belles chambres et d’une salle de bains avec WC, desservies par un palier central.
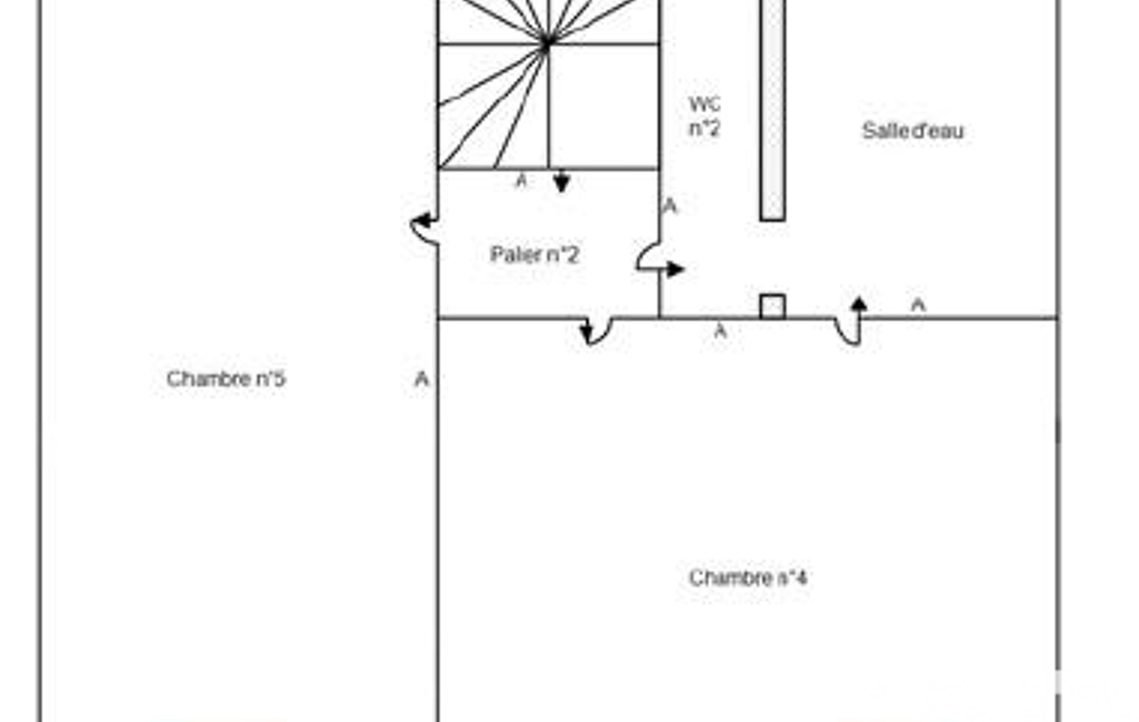
Au deuxième étage, un nouveau palier mène à deux chambres supplémentaires, dont une disposant de son cabinet de toilettes. Des WC séparés viennent compléter cet étage (avec accès direct possible depuis une chambre), offrant praticité et intimité.
Depuis la cuisine, vous accédez à une terrasse, idéale pour vos moments de détente et qui mène par un escalier à un jardin bucolique entièrement clos, doté d'un portail pour stationner votre véhicule en toute sécurité. Une véritable bouffée d'oxygène à l'extérieur avec une maisonnette de jardin pour stocker votre petit matériel. Un atelier d'environ 31 m² en rez de jardin vient également compléter les prestations de ce bien.
Atouts majeurs :
• Emplacement central recherché
• 5 chambres — idéal famille nombreuse ou projet d’accueil
• Extérieur rare en cOEur de ville
• Atelier, maisonnette de jardin et terrasse
. Chauffage Pompe à Chaleur - DPE B
Une maison pleine de cachet proche des commodités du centre-ville tout en bénéficiant d’un environnement verdoyant.
A visiter sans tarder..........
Honoraires d'agence à la charge du vendeur.
Information d'affichage énergétique sur ce bien : classe ENERGIE B indice 73 et classe CLIMAT A indice 2. Les informations sur les risques auxquels ce bien est exposé, y compris l'obligation légale de débroussaillement, sont disponibles sur le site Géorisques : http://www.georisques.gouv.fr.
La présente annonce immobilière a été rédigée sous la responsabilité éditoriale de Mme Carole Renaudin mandataire indépendant en immobilier (sans détention de fonds), agent commercial de la SAS I@D France immatriculé au RSAC de TOURS sous le numéro 793676123, titulaire de la carte de démarchage immobilier pour le compte de la société I@D France SAS.
Mandat : 1969560
Diagnostic de Performance Énergétique (DPE)
Plus d'informations
-
Descriptif
- Terrasse
- Nbre. d'étages : 3
- Nbre. de chambres : 5
- Nb. de pièces : 6
-
Equipement
- Câble TV
- Chauffage : electrique
-
Superficies
- Superficie terrain : 474 m²
- Surface habitable : 150 m²
-
Etat
- Année de construction : 1870
-
Conditions
- Honoraires à charge de : vendeur
Localisation
Contactez nous
Pour plus d'informations sur cette annonce, n'hésitez pas à nous contacter