Vente
Appartement
à
Breuil-Bois-Robert
359 926 €
Breuil-Bois-Robert (78930)
iad France - Elysa Vinay (06 75 67 08 27) vous propose : Nouveau programme immobilier neuf – Vente sur plan
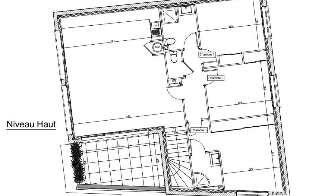
Découvrez une opportunité rare avec cette maison neuve divisée en deux appartements, alliant confort moderne, prestations de qualité et normes de construction actuelles. La vente en état futur d’achèvement (VEFA) vous permet de bénéficier de frais de notaire offerts ainsi que des garanties liées au neuf, pour un achat en toute sérénité.
Un projet idéal pour devenir propriétaire d’un bien neuf dans un cadre privilégié
Honoraires d’agence à la charge du vendeur. Bien non soumis au DPE. Les informations sur les risques auxquels ce bien est exposé sont disponibles sur le site Géorisques : www.georisques.gouv.fr. La présente annonce immobilière a été rédigée sous la responsabilité éditoriale de Mlle Elysa Vinay EI (ID 90913), mandataire indépendant en immobilier (sans détention de fonds), agent commercial de la SAS I@D France immatriculé au RSAC de VERSAILLES sous le numéro 935294637, titulaire de la carte de démarchage immobilier pour le compte de la société I@D France SAS.
Retrouvez tous nos biens sur notre site internet. www.iadfrance.fr
Mandat : 1972147-2
Diagnostic de Performance Énergétique (DPE)
Plus d'informations
-
Conditions
- Honoraires à charge de : vendeur
-
Descriptif
- Nb. de pièces : 4
-
Superficies
- Surface habitable : 99 m²
Localisation
Contactez nous
Pour plus d'informations sur cette annonce, n'hésitez pas à nous contacter