Annonce détaillée

Vente
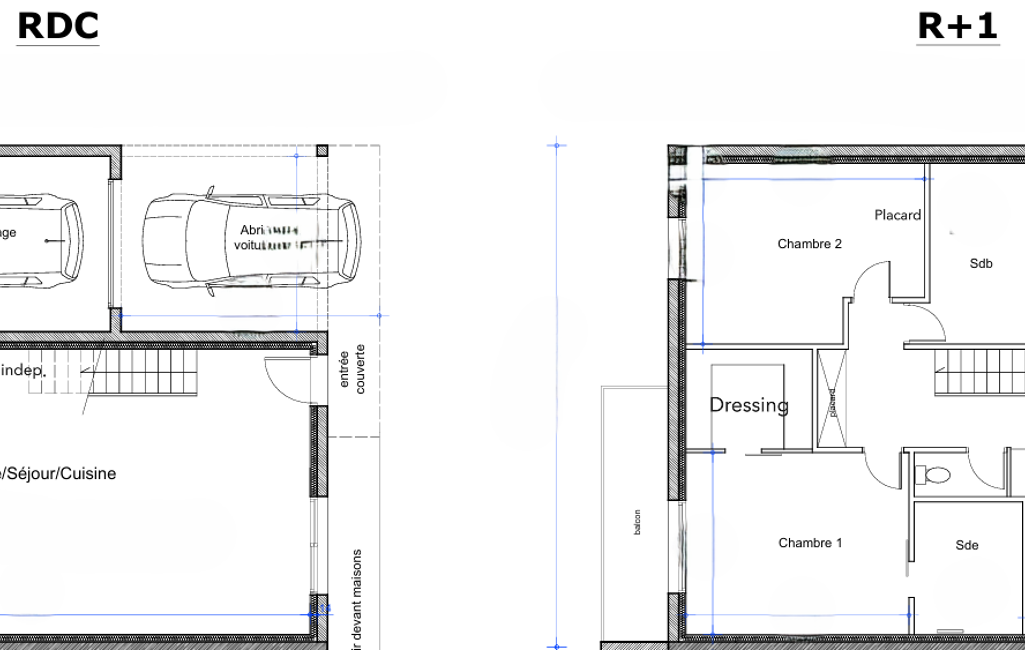
Appartement à Les Adrets-de-l'Estérel
925 000 

Détails du bien

Pièce(s)
4 pièces
Salle(s) de bain
-
Surface
137 m²
Surface terrain
60 m²
Orientation
-

Plus d'informations

  • Equipement
    • Placards
    • Chauffage : individuel electrique
    • Interphone
    • Climatisation
  • Descriptif
    • Terrasse
    • Ascenseur
    • Nbre. d'étages : 2
    • Nb. de pièces : 4
  • Loi ALUR
    • Copropriété
    • Nombre de lots de la copropriété : 15
    • Moyenne de la quote part(an) : 2 280 €
  • Superficies
    • Surface terrasse : 9.2 m²
    • Superficie terrain : 60 m²
    • Surface habitable : 137 m²
  • Extérieur
    • Piscine
  • Etat
    • Année de construction : 2025
  • Conditions
    • Honoraires à charge de : vendeur

Localisation

Contactez nous

Pour plus d'informations sur cette annonce, n'hésitez pas à nous contacter

Angéla Gest

Annonce 359 / 83223