Vente
Appartement
à
Antibes
802 333 €
Antibes (06600)
iad France - Cyril Fournier (06 34 26 49 62) vous propose : Appartement 4 pièces duplex avec vaste jardin privatif – Antibes
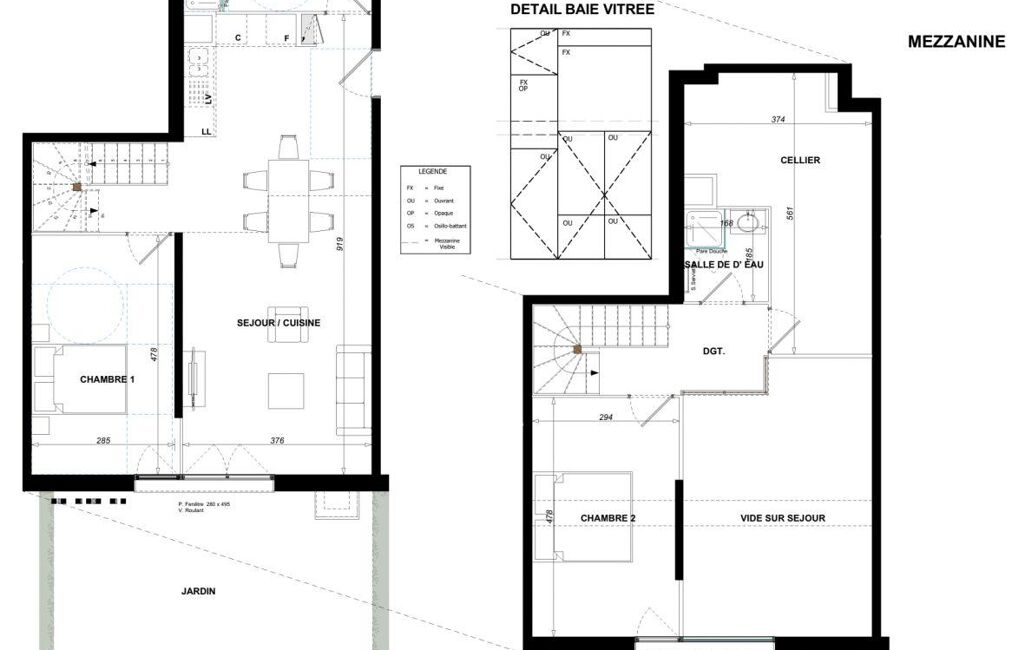
Ce superbe appartement 4 pièces en duplex de 92,75 m² environ offre un cadre de vie unique, conjuguant espace, confort et extérieur exceptionnel de plus de 67 m² environ.
Situé en rez-de-chaussée, il séduit par son orientation Sud-Ouest, gage d’une belle luminosité tout au long de la journée.
???? Un intérieur spacieux et harmonieux
Les volumes généreux et la disposition fonctionnelle créent une atmosphère agréable et conviviale :
•Séjour/cuisine de 36 m² environ, baigné de lumière, ouvrant sur le jardin.
•Trois chambres de 13,7 m² environ, 14 m² environ et 14,6 m² environ, idéales pour une famille ou un couple souhaitant disposer d’un espace de travail ou d’amis.
•Deux salles d’eau modernes et fonctionnelles.
•Dégagement et cellier offrant de nombreux rangements pratiques.
La conception en duplex permet de bien séparer les espaces jour et nuit, assurant intimité et confort.
???? Un extérieur rare sur le marché antibois
Le jardin privatif de 67,15 m² environ, orienté Sud-Ouest, constitue une véritable extension du séjour.
Cet espace extérieur permet d’aménager un salon d’été, une terrasse pour recevoir, ou encore un coin détente verdoyant.
Un bien idéal pour profiter du climat méditerranéen toute l’année.
???? Prestations et confort
•Stationnement privatif en sous-sol inclus
•Résidence sécurisée et arborée, au calme
•Chauffage électrique individuel à faible consommation
???? Rentabilité locative et avantages financiers
•Prix de vente : 548000 €
•Loyer de marché estimé : 1 300 €/mois
•Rentabilité brute estimée : 3,10 %
•Frais de notaire à la charge du vendeur
Un bien offrant un excellent ratio surface / prix / rentabilité, idéal pour un investissement locatif patrimonial ou une résidence principale de standing.
???? Idéal pour :
•Une famille cherchant de l’espace et un grand extérieur
•Un investisseur souhaitant un bien rare à forte valeur patrimoniale
•Un pied-à-terre haut de gamme dans un secteur résidentiel d’Antibes
________________________________________
? Un bien d’exception associant volumes généreux, jardin privatif exposé plein Sud-Ouest et prestations haut de gamme dans un cadre recherché.
Contactez-nous dès aujourd’hui pour plus d’informations ou organiser une visite personnalisée.
Honoraires d’agence à la charge du vendeur. Bien non soumis au DPE. Les informations sur les risques auxquels ce bien est exposé sont disponibles sur le site Géorisques : www.georisques.gouv.fr. La présente annonce immobilière a été rédigée sous la responsabilité éditoriale de M. Cyril Fournier EI (ID 57751), mandataire indépendant en immobilier (sans détention de fonds), agent commercial de la SAS I@D France immatriculé au RSAC de Cannes sous le numéro 751452475, titulaire de la carte de démarchage immobilier pour le compte de la société I@D France SAS.
Retrouvez tous nos biens sur notre site internet. www.iadfrance.fr
Mandat : 1863394-6
Diagnostic de Performance Énergétique (DPE)
Plus d'informations
-
Conditions
- Honoraires à charge de : vendeur
-
Descriptif
- Nb. de pièces : 3
-
Superficies
- Surface habitable : 93 m²
Localisation
Contactez nous
Pour plus d'informations sur cette annonce, n'hésitez pas à nous contacter