Vente
Appartement
à
Carpiquet
205 000 €
Carpiquet (14650)
iad France - Benoit Loisel (07 45 10 04 04) vous propose : Appartement T2 avec terrasse et jardinet – Carpiquet
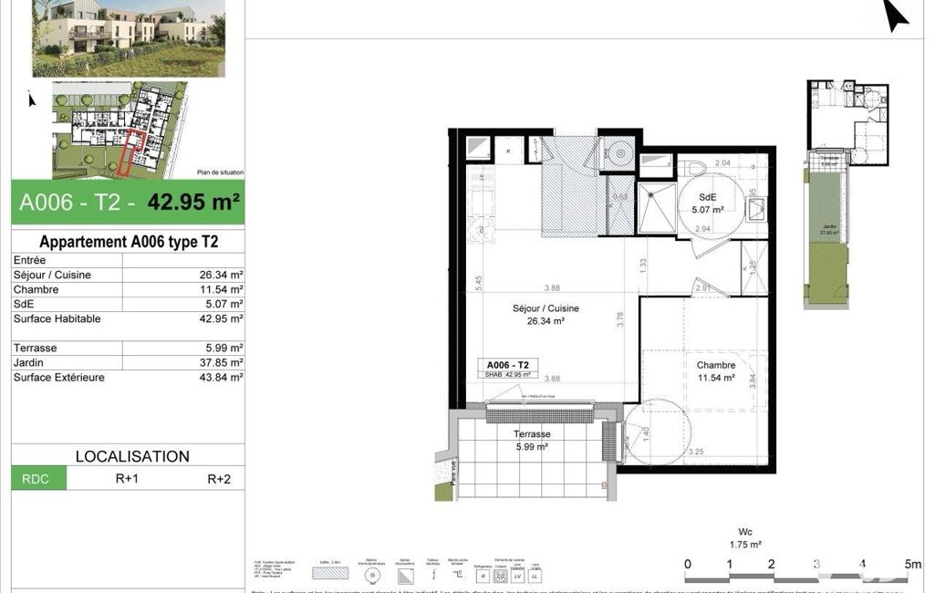
Situé au cOEur du centre-ville de Carpiquet, ce bel appartement T2 de 43 m² environ offre un cadre de vie moderne, lumineux et fonctionnel.
Il se compose d’un séjour avec cuisine ouverte, d’une chambre, d’une salle d’eau et d’une agréable terrasse donnant sur un jardinet privatif de 37 m² environ, idéal pour profiter des beaux jours.
Les prestations haut de gamme garantissent confort et sérénité au quotidien :
•Accès sécurisé par visiophone
•Isolation renforcée et volets roulants motorisés
•Résidence conforme à la norme RE 2020 – seuil 2025
•Parking privatif sous-sol
•Proximité immédiate des commerces et services
• Ascenseur
Emplacement privilégié à seulement quelques minutes de Caen, avec écoles, infrastructures sportives et transports accessibles à pied.
Un bien idéal pour un investissement locatif ou une résidence principale de qualité.
Contactez-moi.
Honoraires d’agence à la charge du vendeur. Bien non soumis au DPE. Les informations sur les risques auxquels ce bien est exposé sont disponibles sur le site Géorisques : www.georisques.gouv.fr. La présente annonce immobilière a été rédigée sous la responsabilité éditoriale de M. Benoit Loisel EI (ID 77566), mandataire indépendant en immobilier (sans détention de fonds), agent commercial de la SAS I@D France immatriculé au RSAC de CAEN sous le numéro 951884220, titulaire de la carte de démarchage immobilier pour le compte de la société I@D France SAS.
Retrouvez tous nos biens sur notre site internet. www.iadfrance.fr
Mandat : 1928670-13
Diagnostic de Performance Énergétique (DPE)
Plus d'informations
-
Descriptif
- Terrasse
- Ascenseur
- Nbre. d'étages : 2
- Nb. Parking : 1
- Nb. de pièces : 2
-
Equipement
- Câble TV
- Digicode
- Chauffage : individuel electrique radiateur
- Interphone
-
Etat
- Année de construction : 2026
-
Conditions
- Honoraires à charge de : vendeur
-
Superficies
- Surface habitable : 43 m²
Localisation
Contactez nous
Pour plus d'informations sur cette annonce, n'hésitez pas à nous contacter