Vente
Maison
à
Esbly
278 000 €
Esbly (77450)
iad France - Julien Formantin vous propose: EXCLUSIVITE MAISON de 60m² sur une parcelle de 300m²
Au coeur d'Esbly Val d'Europe, secteur calme et très recherché, proche des commerces et des écoles
Un bien avec beaucoup de potentiel pour une famille ou un investisseur (location saisonnière ou classique)
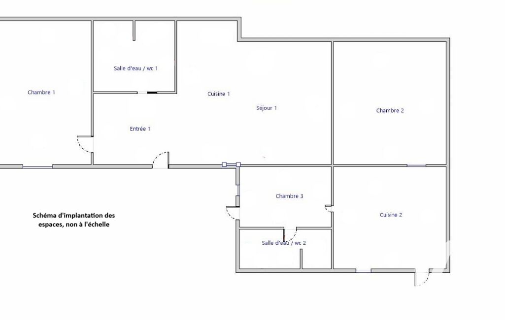
Actuellement séparé en deux avec accès indépendants pour de la location saisonnière avec une très bonne rentabilité.
Ce bien peut retrouver facilement sa configuration initiale pour une maison familiale
Plain-pied
3 chambres
2 salles d’eau avec WC
2 cuisines ouvertes sur les séjours
Jardin cloturé, exposé SUD, au calme
Prestations : bon DPE, pas de travaux, chauffage électrique, double vitrage, volets roulants.
Hors zone inondable
Transports :
RER A Val d'Europe/MLV, Transilien ligne P, Bus à quelques pas
30 min de Paris
Contactez moi, pour une visite de ce bien rare sur le secteur !
Honoraires d'agence à la charge du vendeur.
Information d'affichage énergétique sur ce bien : classe ENERGIE C indice 177 et classe CLIMAT B indice 6. Les informations sur les risques auxquels ce bien est exposé, y compris l'obligation légale de débroussaillement, sont disponibles sur le site Géorisques : http://www.georisques.gouv.fr.
La présente annonce immobilière a été rédigée sous la responsabilité éditoriale de M Julien Formantin mandataire indépendant en immobilier (sans détention de fonds), agent commercial de la SAS I@D France immatriculé au RSAC de Meaux sous le numéro 903848927, titulaire de la carte de démarchage immobilier pour le compte de la société I@D France SAS.
Mandat : 1957106
Diagnostic de Performance Énergétique (DPE)
Plus d'informations
-
Descriptif
- Terrasse
- Nbre. d'étages : 1
- Nbre. de chambres : 3
- Nb. de pièces : 4
-
Superficies
- Superficie terrain : 300 m²
- Surface habitable : 60 m²
-
Equipement
- Chauffage : electrique
-
Conditions
- Honoraires à charge de : vendeur
Localisation
Contactez nous
Pour plus d'informations sur cette annonce, n'hésitez pas à nous contacter